グランデュア北郷802号室
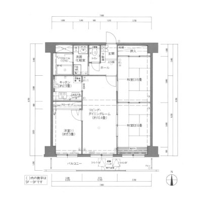
ここに注目!札幌市白石区北郷8条に佇む「グランデュア北郷」802号室のご紹介です。 1000万円という価格で、3LDK、専有面積67.86m²の住まいが手に入ります。 9階建ての8階部分、南向きバルコニー(9.36m²)で日当たりも良く、開放的な眺望が魅力です。 オートロックやモニタ付インターホンでセキュリティも配慮されており、システムキッチンや灯油暖房、都市ガスなど設備も充実。 エレベーター完備で上階への移動もスムーズです。 周辺には認定こども園(徒歩5分)、小学校・中学校(徒歩9分)があり、子育て世代にも暮らしやすい環境。 コンビニ(徒歩7分)や郵便局(徒歩7分)も近く、業務スーパー(徒歩13分)で日々のお買い物も便利です。 敷地内には駐車場もございます(月額6,300円~9,300円空き状況要確認)。 ぜひ一度、この魅力的な住まいをご覧ください。お問い合わせをお待ちしております。
| 価格 |
1,000万円
坪単価:約48.7万円/坪
管理費5,972円/月修繕積立金1万6,694円/月
|
|---|---|
| 間取・専有 |
3LDK(67.86m²)
|
| 住所 | 北海道札幌市白石区北郷八条3丁目6番36 |
| 交通 | 白石駅(徒歩25分)道順を見る |
| 築年月 | 築33年(1992年7月) |
| 駐車場 |
あり 駐車可能台数:0台
駐車場空き状況要確認6,800円~9,300円 |
販売状況、見学、詳細を知りたい方はこちら!
お電話の際は「連合隊の物件」とお伝えください。
情報掲載期限:あと18日(更新日 2025/12/14)
- 物件写真・概要
- 周辺地図
-
販売状況、見学、詳細を知りたい方はこちら!
おすすめポイント
- 即引渡し可
- 南向き
- 駐車場あり
- 都市ガス
- 2階以上
- オートロック
- エレベーター
- 近くて便利!徒歩5分以内にある施設
- 5分
5分- 周辺施設を地図で確認
交通色がついているアイコンをクリックすると、本物件までの道順を見ることができます。
物件概要
所在階/建物の階建 8階(802) / 地上9階建 総戸数 25戸 主要採光面 南 構造 鉄筋コンクリート(RC)造 バルコニー あり(9.36m²)- バルコニー南向き
土地権利 所有権 引渡し 即時 現況 空き 管理人 日勤 管理形態 全部委託 管理組合 有 施工業者 北信建設 取引態様 仲介 物件No 仲介手数料概算 39万6,000円(金額は概算です。正確な金額は不動産会社へお問合せ下さい) 設備・特徴 - エレベーター
- システムキッチン
- 都市ガス
- 灯油暖房
- オートロック
- モニタ付インターホン
- 日当り良好
備考 学区色がついているアイコンをクリックすると、本物件までの道順を見ることができます。
主な周辺施設色がついているアイコンをクリックすると、本物件までの道順を見ることができます。
-
ホームページはこちら
北海道知事 石狩(3) 第7678号
ライフサポート札幌(株)〒062-0933
北海道札幌市豊平区平岸三条4丁目1-1
ateena hiragishi 1階TEL:011-815-2255
FAX:011-815-1833
営業時間:10:00~17:30
定休日:第1 日曜 / 毎週 水曜・祝日 / 第2 火曜 / 第3 火曜
※連合隊は物件情報の精度向上に努めています:「物件情報に誤りがある」「成約済みである」などお気付きの点がございましたらこちらよりご連絡ください。
写真枚数:26枚
少しでも気になる物件があればお問合せ下さい!
他社と違い基本的に直接管理している物件のみ掲載しています。物件数は少ないですが、柔軟に対応出来ますので、少しでも気になる物件があればお気軽にご連絡下さい!