ファミール宮の森II
ここに注目!90平米超・LDK18帖超の広々4LDK。バルコニーから望む三角山。ペット2匹飼育可。 ■地下鉄東西線「西28丁目」駅徒歩12分 ■2026年3月内装リノベーション(システムキッチン、ユニットバス、シャワー付洗面化粧台、防水パン、温水洗浄便座付トイレ、照明器具、建具、床、壁・天井クロス、室内クリーニング等) ■6階建て4階部分南西向きで陽当たり良好 ■ペット飼育相談(要承認・飼育細則有) ■敷地内駐車場空有(12000円/月) ■トランクルーム1住戸1区画利用可能(使用料不要) ■ファミリーマート宮の森3条店徒歩4分、ツルハドラッグ宮の森3条店徒歩5分、ラッキー山の手店徒歩6分、DCM山の手店徒歩8分
| 価格 |
3,590万円
坪単価:約126.5万円/坪
管理費1万510円/月修繕積立金2万4,440円/月
|
|---|---|
| 間取・専有 |
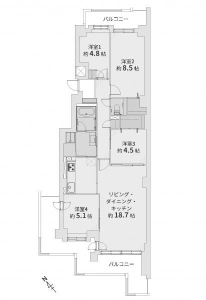
4LDK(93.85m²)
|
| 住所 | 北海道札幌市中央区宮の森三条7丁目 |
| 交通 | 西28丁目駅(徒歩12分) |
| 築年月 | 築32年(1994年3月) |
| 駐車場 |
あり (1万2,000円/台)
|
【WEB面談可】
販売状況、見学、詳細を知りたい方はこちら!
お電話の際は「連合隊の物件」とお伝えください。
情報掲載期限:あと29日(更新日 2026/4/20)
- 物件写真・概要
- 周辺地図
-
【WEB面談可】
販売状況、見学、詳細を知りたい方はこちら!おすすめポイント
- 駐車場あり
- リフォーム済み
- 都市ガス
- 2階以上
- ペット相談可
- オートロック
- エレベーター
- 近くて便利!徒歩5分以内にある施設
- 5分
5分- 3分
3分- 周辺施設を地図で確認
交通色がついているアイコンをクリックすると、本物件までの道順を見ることができます。
物件概要
所在階/建物の階建 4階 / 地上6階建 総戸数 37戸 主要採光面 南西 構造 鉄筋コンクリート(RC)造 バルコニー あり(25.81m²)- バルコニー2面以上
土地権利 所有権 引渡し 現況 その他(完成済み(空室)) 管理人 管理形態 管理組合 指定なし 施工業者 大木建設 取引態様 仲介 物件No 13748580 仲介手数料概算 不動産会社へお問合せください 修繕履歴 - 2026年3月頃にキッチン・浴室・トイレ・リビング・物件全体・その他の箇所をリフォームしています。施工内容:壁・床・洗面所・建具
設備・特徴 - ペット相談可
- システムキッチン
- 食器洗乾燥機
- 都市ガス
- 温水洗浄トイレ
- オートロック
- モニタ付インターホン
- 納戸・トランクルーム
- 宅配BOX
- エレベーター
- フローリング
備考 南西向きで陽当り良好。二面採光・二面バルコニーで明るさと風通しの良さを兼ね備えたゆったりとしたお部屋です。壁付けキッチンでリビングをより広く使えて、水回り部分が回遊導線のため、使いやすい間取りです。・南西向き 学区色がついているアイコンをクリックすると、本物件までの道順を見ることができます。
主な周辺施設
- 宮の森小学校約180m(徒歩3分)
- 向陵中学校約1.1km(徒歩14分)
- ラッキー山の手店約390m(徒歩5分)
-
ホームページはこちら
北海道知事 石狩(10) 第3900号
ジン不動産販売(株) 【WEB面談可】- 加入団体
- (公社)北海道宅地建物取引業協会
- 保証協会
- (公社)全国宅地建物取引業保証協会
- 公正取引協議会
- (一社)北海道不動産公正取引協議会
※連合隊は物件情報の精度向上に努めています:「物件情報に誤りがある」「成約済みである」などお気付きの点がございましたらこちらよりご連絡ください。
写真枚数:23枚
【ジン不動産グループ】住まいをもっと豊かに。
ジン不動産販売は、仲介事業(土地、中古住宅など)及び受託販売事業(新築マンション、新築戸建てなど)を行っています。ジン不動産グループの販売事業を担い、幅広くニーズにお応えし実績を残しております。