カルム麻生中央
ここに注目!南北の二面バルコニー仕様で風通し良好。南側は高い建物が少なく抜けており南側バルコニーから藻岩山が望めます。リビング東側窓からも日を取り込める二面採光の明るいお部屋。フラット対面キッチンでLDに開放感があります。 ■地下鉄南北線「麻生」駅徒歩5分 ■2025年11月内装リフォーム(システムキッチン、ユニットバス、洗面化粧台、トイレ、フローリング、壁・天井クロス他) ■10階建て8階部分南向き角住戸で日当たり・眺望良好 ■二面バルコニー ■各室収納 ■セブンイレブン北35条店徒歩4分、サツドラ麻生北35条店徒歩4分、イオン麻生店徒歩6分、東光ストア麻生店7分
| 価格 |
3,498万円
坪単価:約144.8万円/坪
管理費1万1,000円/月修繕積立金2万9,000円/月
|
|---|---|
| 間取・専有 |
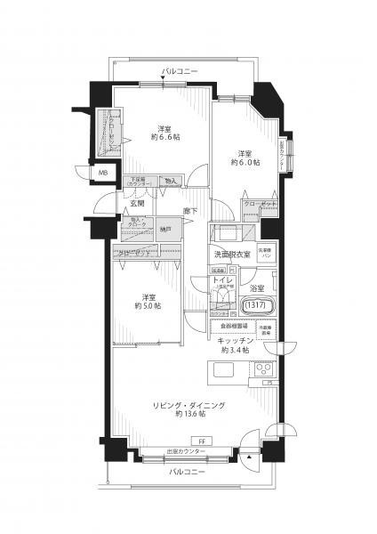
3LDK(79.9m²)
|
| 住所 | 北海道札幌市北区北三十六条西4丁目 |
| 交通 | 麻生駅(徒歩5分)|北34条駅(徒歩6分) |
| 築年月 | 築26年(1999年3月) |
| 駐車場 |
あり (1万1,000円/台)
|
【WEB面談可】
販売状況、見学、詳細を知りたい方はこちら!
お電話の際は「連合隊の物件」とお伝えください。
新着 情報掲載期限:あと29日(更新日 2026/1/26)
- 物件写真・概要
- 周辺地図
-
【WEB面談可】
販売状況、見学、詳細を知りたい方はこちら!おすすめポイント
- 南向き
- 駐車場あり
- 角部屋
- 2階以上
- オートロック
- エレベーター
- 駅徒歩5分以内
- 近くて便利!徒歩5分以内にある施設
- 4分
4分- 4分
4分- 周辺施設を地図で確認
交通色がついているアイコンをクリックすると、本物件までの道順を見ることができます。
物件概要
所在階/建物の階建 8階 / 地上10階建 総戸数 23戸 主要採光面 南 構造 鉄筋コンクリート(RC)造 バルコニー あり(12.64m²)- バルコニー2面以上
- バルコニー南向き
土地権利 所有権 引渡し 現況 その他(完成済み(空室)) 管理人 管理形態 管理組合 指定なし 取引態様 仲介 物件No 13748082 仲介手数料概算 不動産会社へお問合せください 設備・特徴 - 角部屋
- 日当り良好
- システムキッチン
- 食器洗乾燥機
- 温水洗浄トイレ
- オートロック
- モニタ付インターホン
- 納戸・トランクルーム
- 宅配BOX
- エレベーター
- 全居室収納あり
備考 始発駅徒歩5分。8階部分・南向き角住戸で陽当り、眺望良好。収納豊富。 ・南向き 学区色がついているアイコンをクリックすると、本物件までの道順を見ることができます。
主な周辺施設
- 和光小学校約700m(徒歩9分)
- 北陽中学校約920m(徒歩12分)
- セブンイレブン北35条店約260m(徒歩4分)
- 東光ストア麻生店約520m(徒歩7分)
- サツドラ麻生北35条店約300m(徒歩4分)
- イオン麻生店約470m(徒歩6分)
-
ホームページはこちら
北海道知事 石狩(10) 第3900号
ジン不動産販売(株) 【WEB面談可】- 加入団体
- (公社)北海道宅地建物取引業協会
- 保証協会
- (公社)全国宅地建物取引業保証協会
- 公正取引協議会
- (一社)北海道不動産公正取引協議会
※連合隊は物件情報の精度向上に努めています:「物件情報に誤りがある」「成約済みである」などお気付きの点がございましたらこちらよりご連絡ください。
写真枚数:23枚
【ジン不動産グループ】住まいをもっと豊かに。
ジン不動産販売は、仲介事業(土地、中古住宅など)及び受託販売事業(新築マンション、新築戸建てなど)を行っています。ジン不動産グループの販売事業を担い、幅広くニーズにお応えし実績を残しております。