グレートヒル北18条
ここに注目!南西向き・三方角住戸で陽当り良好。駐車場全戸分完備。 ■地下鉄東豊線「環状通東」駅徒歩10分 ■2025年11月内装リノベーション(システムキッチン、ユニットバス、シャワー付洗面化粧台、防水パン、温水洗浄便座付トイレ、電気温水器、給水・給湯・排水管、照明器具、建具、床、壁・天井クロス、室内クリーニング等) ■11階建て3階部分南西向き角住戸 ■敷地内駐車場空有(継承可・8000円/月) ■アフターサービス保証付(設備・部位別に最長20年) ■セブンイレブン北19条東店徒歩2分、セイコーマート元町北18条店徒歩3分、マックスバリュ元町店徒歩6分
| 価格 |
2,790万円
坪単価:約111.7万円/坪
管理費1万2,300円/月修繕積立金1万4,120円/月
|
|---|---|
| 間取・専有 |
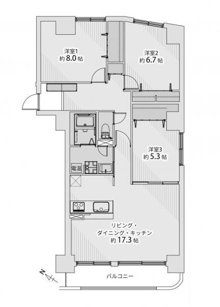
3LDK(82.55m²)
|
| 住所 | 北海道札幌市東区北十八条東19丁目 |
| 交通 | 環状通東駅(徒歩10分) |
| 築年月 | 築28年(1997年5月) |
| 駐車場 |
あり (8,000円/台)
|
【WEB面談可】
販売状況、見学、詳細を知りたい方はこちら!
お電話の際は「連合隊の物件」とお伝えください。
情報掲載期限:あと28日(更新日 2026/1/16)
- 物件写真・概要
- 周辺地図
-
【WEB面談可】
販売状況、見学、詳細を知りたい方はこちら!おすすめポイント
- 駐車場あり
- 角部屋
- 2階以上
- オートロック
- エレベーター
- 近くて便利!徒歩5分以内にある施設
- 2分
2分- 周辺施設を地図で確認
交通色がついているアイコンをクリックすると、本物件までの道順を見ることができます。
物件概要
所在階/建物の階建 3階 / 地上11階建 総戸数 23戸 主要採光面 南西 構造 鉄筋コンクリート(RC)造 バルコニー あり(7.32m²)土地権利 所有権 引渡し 現況 その他(完成済み(空室)) 管理人 管理形態 管理組合 指定なし 施工業者 大岡産業 取引態様 仲介 物件No 13747862 仲介手数料概算 不動産会社へお問合せください 設備・特徴 - 角部屋
- システムキッチン
- IHクッキングヒーター
- 食器洗乾燥機
- 温水洗浄トイレ
- オートロック
- 納戸・トランクルーム
- エレベーター
- フローリング
- 全居室収納あり
備考 南西向き・東豊線「環状通東」駅まで徒歩10分。乗車4分で札幌駅に行けて通勤・通学など都心部へのアクセスが良好です。徒歩圏内に緑豊かな伏古公園や、スーパー、医療施設など充実。LDK約17.3帖で広々としており、ファミリーにおすすめな3LDK物件です。 学区色がついているアイコンをクリックすると、本物件までの道順を見ることができます。
主な周辺施設
- 開成小学校約600m(徒歩8分)
- 元町中学校約1.7km(徒歩22分)
- セブンイレブン北19条東店約150m(徒歩2分)
- マックスバリュ元町店約470m(徒歩6分)
-
ホームページはこちら
北海道知事 石狩(10) 第3900号
ジン不動産販売(株) 【WEB面談可】- 加入団体
- (公社)北海道宅地建物取引業協会
- 保証協会
- (公社)全国宅地建物取引業保証協会
- 公正取引協議会
- (一社)北海道不動産公正取引協議会
※連合隊は物件情報の精度向上に努めています:「物件情報に誤りがある」「成約済みである」などお気付きの点がございましたらこちらよりご連絡ください。
写真枚数:20枚
【ジン不動産グループ】住まいをもっと豊かに。
ジン不動産販売は、仲介事業(土地、中古住宅など)及び受託販売事業(新築マンション、新築戸建てなど)を行っています。ジン不動産グループの販売事業を担い、幅広くニーズにお応えし実績を残しております。