豊平区西岡三条9丁目 店舗付中古住宅
ここに注目!元居酒屋の店舗付き住宅。現状の設備を使用することも可能で、初期費用を抑えられる可能性もあります。 ■店舗付き住宅(3LDK+事務所) ■中央バス「西岡3条9丁目」停徒歩1分(地下鉄南北線「澄川」駅バス乗車9分、地下鉄東豊線「福住」駅バス乗車14分) ■角地 ■北海道銀行西岡支店徒歩1分、西岡ぬまた公園徒歩2分、ラッキー西岡店徒歩6分、セブンイレブン西岡3条店徒歩6分、ツルハドラッグ西岡店徒歩6分、サツドラ西岡店徒歩7分、DCM西岡店13分
| 価格 |
1,900万円
|
|---|---|
| 建物面積 | 165.64m² (50.1坪) |
| 土地面積 | 151.59m² (45.85坪) |
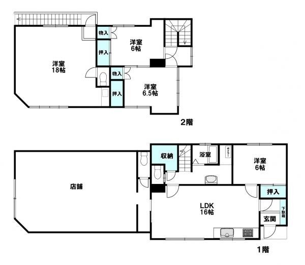
| 間取り | 4LDK |
| 住所 | 北海道札幌市豊平区西岡三条9丁目 |
| 交通 | 澄川駅(バスで9分)|バス停:西岡3条9丁目(徒歩1分)|福住駅(バスで14分)|バス停:西岡3条9丁目(徒歩1分) |
| 築年月 | 築45年(1980年12月) |
| 駐車場 |
【WEB面談可】
販売状況、見学、詳細を知りたい方はこちら!
お電話の際は「連合隊の物件」とお伝えください。
情報掲載期限:あと23日(更新日 2025/12/26)
- 物件写真・概要
- 周辺地図
-
▼クリックで左の拡大画像が変わります。 すべての写真を拡大
【WEB面談可】
販売状況、見学、詳細を知りたい方はこちら!おすすめポイント
- 角地
- 近くて便利!徒歩5分以内にある施設
- 2分
2分- 周辺施設を地図で確認
交通
- 澄川駅札幌市営地下鉄南北線バス9分
- バス停:西岡3条9丁目徒歩1分
- 福住駅札幌市営地下鉄東豊線バス14分
- バス停:西岡3条9丁目徒歩1分
物件概要
建物の階建 地上2階建 主要採光面 構造 木造 接道状況 二方(除角地) - 南東側幅19.90mの道に8.60m接道
- 北東側幅6.00mの道に18.20m接道
都市計画区域 その他(市街化) 私道負担 地目/地勢 宅地 国土法届出 土地権利 所有権 用途地域 - 近隣商業地域(建ぺい率:80% / 容積率:200%)
引渡し 現況 その他(完成済み(居住中)) 取引態様 仲介 物件No 13747695 仲介手数料概算 不動産会社へお問合せください 設備・特徴 - 角地
- LPガス
- 全居室収納あり
備考 元居酒屋の店舗付き住宅。 学区色がついているアイコンをクリックすると、本物件までの道順を見ることができます。
主な周辺施設
- 西岡小学校約660m(徒歩9分)
- 西岡北中学校約760m(徒歩10分)
- セブンイレブン西岡3条店約470m(徒歩6分)
- ラッキー西岡店約440m(徒歩6分)
- ツルハドラッグ西岡店約480m(徒歩6分)
- 西岡ぬまた公園約160m(徒歩2分)
-
ホームページはこちら
北海道知事 石狩(10) 第3900号
ジン不動産販売(株) 【WEB面談可】- 加入団体
- (公社)北海道宅地建物取引業協会
- 保証協会
- (公社)全国宅地建物取引業保証協会
- 公正取引協議会
- (一社)北海道不動産公正取引協議会
※連合隊は物件情報の精度向上に努めています:「物件情報に誤りがある」「成約済みである」などお気付きの点がございましたらこちらよりご連絡ください。
写真枚数:16枚
北海道銀行西岡支店 徒歩1分
ラッキー西岡店 徒歩6分
ツルハドラッグ西岡店 徒歩6分
セブンイレブン西岡3条店 徒歩6分
サツドラ西岡店 徒歩7分
DCM西岡店 徒歩13分
【ジン不動産グループ】住まいをもっと豊かに。
ジン不動産販売は、仲介事業(土地、中古住宅など)及び受託販売事業(新築マンション、新築戸建てなど)を行っています。ジン不動産グループの販売事業を担い、幅広くニーズにお応えし実績を残しております。