中央区南二十五条西8丁目 中古戸建
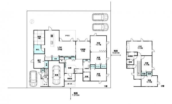
ここに注目!敷地面積約129坪、建物面積約80坪の2世帯住宅。駐車4台可能。 ■市電「東屯田通」停徒歩8分 ■5SLDK+2LDKの二世帯住宅 ■約129坪の北西角地 ■オール電化住宅 ■車庫+駐車スペースで駐車4台可能 ■都市ガス(引込無し) ■セイコーマートそでもり店徒歩3分、アクロスプラザ南22条(北海市場・サツドラ・ダイソー等)徒歩7分、コープさっぽろやまはな店徒歩10分
| 価格 |
1億1,000万円
|
|---|---|
| 建物面積 | 265.4m² (80.28坪) |
| 土地面積 | 427.47m² (129.3坪) |
| 間取り | 7SLDK |
| 住所 | 北海道札幌市中央区南二十五条西8丁目 |
| 交通 | 東屯田通駅(徒歩8分) |
| 築年月 | 築18年(2007年2月) |
| 駐車場 |
あり 駐車可能台数:4台
|
【WEB面談可】
販売状況、見学、詳細を知りたい方はこちら!
お電話の際は「連合隊の物件」とお伝えください。
情報掲載期限:あと4日(更新日 2025/11/10)
- 物件写真・概要
- 周辺地図
-
【WEB面談可】
販売状況、見学、詳細を知りたい方はこちら!おすすめポイント
- 駐車2台以上可
- 角地
- オール電化
- 近くて便利!徒歩5分以内にある施設
- 3分
3分- 周辺施設を地図で確認
交通色がついているアイコンをクリックすると、本物件までの道順を見ることができます。
物件概要
建物の階建 地上2階建 主要採光面 構造 木造 接道状況 二方(除角地) - 北側幅7.20mの公道に接道
- 西側幅10.90mの公道に接道
都市計画区域 その他(市街化) 私道負担 地目/地勢 宅地 国土法届出 土地権利 所有権 用途地域 - 第2種中高層住居専用地域(建ぺい率:70% / 容積率:200%)
引渡し 現況 その他(完成済み(空室)) 取引態様 仲介 物件No 13742527 仲介手数料概算 不動産会社へお問合せください 設備・特徴 - 角地
- システムキッチン
- トイレ2ヶ所以上
- 床暖房
- オール電化
- その他:駐車2台
備考 敷地面積約129坪、建物面積約80坪の2世帯住宅です。車庫(1台)+3台分の駐車スペースがあります。居住用の他、事務所用としてもご検討可能です。空室になりましたので建物内ご内覧いただけます。 学区色がついているアイコンをクリックすると、本物件までの道順を見ることができます。
主な周辺施設
- 山鼻南小学校約990m(徒歩13分)
- 柏中学校約870m(徒歩11分)
- セイコーマートそでもり店約240m(徒歩3分)
- コープさっぽろやまはな店約770m(徒歩10分)
- アクロスプラザ南22条約540m(徒歩7分)
-
ホームページはこちら
北海道知事 石狩(10) 第3900号
ジン不動産販売(株) 【WEB面談可】- 加入団体
- (公社)北海道宅地建物取引業協会
- 保証協会
- (公社)全国宅地建物取引業保証協会
- 公正取引協議会
- (一社)北海道不動産公正取引協議会
※連合隊は物件情報の精度向上に努めています:「物件情報に誤りがある」「成約済みである」などお気付きの点がございましたらこちらよりご連絡ください。
写真枚数:30枚
【ジン不動産グループ】住まいをもっと豊かに。
ジン不動産販売は、仲介事業(土地、中古住宅など)及び受託販売事業(新築マンション、新築戸建てなど)を行っています。ジン不動産グループの販売事業を担い、幅広くニーズにお応えし実績を残しております。