ふじ井ハイデンス円山
ここに注目!円山駅至近、徒歩1分。約88平米のリフォーム済3LDK+WIC角住戸。 ■地下鉄東西線「円山公園」駅徒歩1分 ■2025年8月内装リノベーション(システムキッチン、ユニットバス、シャワー付洗面化粧台、防水パン、温水洗浄便座付トイレ、給水・給湯・排水配管、照明器具、建具、床、壁・天井クロス、TVモニター付インターホン、室内クリーニング等) ■9階建て4階部分南西角住戸 ■敷地内駐車場空有(10000~13000円/月) ■トランクルーム利用可(無償) ■アフターサービス保証付(設備・部位別に最長20年)
| 価格 |
3,190万円
坪単価:約119.4万円/坪
管理費2万2,090円/月修繕積立金2万2,090円/月
|
|---|---|
| 間取・専有 |
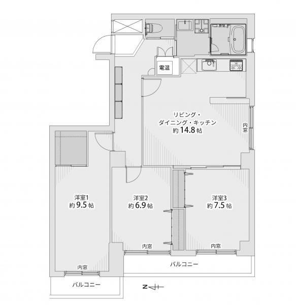
3LDK(88.36m²)
|
| 住所 | 北海道札幌市中央区南一条西26丁目 |
| 交通 | 円山公園駅(徒歩1分) |
| 築年月 | 築46年(1979年9月) |
| 駐車場 |
あり (1万円/台)
|
【WEB面談可】
販売状況、見学、詳細を知りたい方はこちら!
お電話の際は「連合隊の物件」とお伝えください。
情報掲載期限:あと29日(更新日 2025/12/12)
- 物件写真・概要
- 周辺地図
-
【WEB面談可】
販売状況、見学、詳細を知りたい方はこちら!おすすめポイント
- 南向き
- 駐車場あり
- 都市ガス
- 角部屋
- 2階以上
- エレベーター
- 駅徒歩1分以内
交通色がついているアイコンをクリックすると、本物件までの道順を見ることができます。
物件概要
所在階/建物の階建 4階 / 地上9階建 総戸数 24戸 主要採光面 南 構造 鉄筋コンクリート(RC)造 バルコニー あり(6.12m²)- バルコニー南向き
土地権利 所有権 引渡し 現況 その他(完成済み(空室)) 管理人 管理形態 管理組合 指定なし 取引態様 仲介 物件No 13738296 仲介手数料概算 不動産会社へお問合せください 設備・特徴 - ウォークインクローゼット
- 角部屋
- システムキッチン
- 食器洗乾燥機
- 都市ガス
- 温水洗浄トイレ
- モニタ付インターホン
- 室内洗濯機置場
- 納戸・トランクルーム
- エレベーター
- フローリング
- 全居室収納あり
備考 東西線「円山」駅まで徒歩1分。近隣には円山小学校(徒歩6分)、マルヤマクラス(徒歩1分)などがありファミリーにオススメ。間取りはLDKが約14.8帖、各洋室は約6.9~9.5帖の広々とした間取りです。大きなウォークインクローゼットも有り、収納豊富なお部屋です。・南向き -
ホームページはこちら
北海道知事 石狩(10) 第3900号
ジン不動産販売(株) 【WEB面談可】- 加入団体
- (公社)北海道宅地建物取引業協会
- 保証協会
- (公社)全国宅地建物取引業保証協会
- 公正取引協議会
- (一社)北海道不動産公正取引協議会
※連合隊は物件情報の精度向上に努めています:「物件情報に誤りがある」「成約済みである」などお気付きの点がございましたらこちらよりご連絡ください。
写真枚数:21枚
【ジン不動産グループ】住まいをもっと豊かに。
ジン不動産販売は、仲介事業(土地、中古住宅など)及び受託販売事業(新築マンション、新築戸建てなど)を行っています。ジン不動産グループの販売事業を担い、幅広くニーズにお応えし実績を残しております。