ローズグランデ新琴似10条 1号地
ここに注目!12/13(土)・14(日)オープンハウス開催。JR新琴似駅徒歩8分の4LDK未入居物件が3900万円台から。新琴似北小学校まで徒歩5分、新琴似北公園まで徒歩2分のちいさなお子様にも安心の立地。 ■新琴似北小学校まで徒歩5分、新琴似中学校まで徒歩10分。琴似北公園までは徒歩2分。 ■スーパー・ドラッグストア・クリニック・郵便局などの施設も徒歩圏に充実しています。 ■リビング・ダイニング 17帖以上、全居室5帖以上の4LDK。 ■各部屋に収納があります。 ■カースペースは2台分確保。 ■前面道路は6m以上で開放感ある敷地
| 価格 |
3,920万円
|
|---|---|
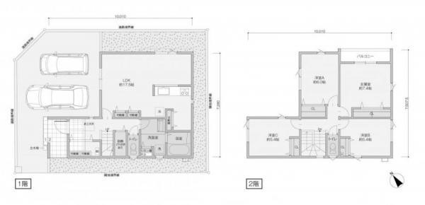
| 建物面積 | 106.41m² (32.18坪) |
| 土地面積 | 133.7m² (40.44坪) |
| 間取り | 4LDK |
| 住所 | 北海道札幌市北区新琴似十条4丁目 |
| 交通 | 新琴似駅(徒歩9分)|麻生駅(徒歩14分) |
| 築年月 | 築2年(2023年3月) |
| 駐車場 |
あり 駐車可能台数:2台
|
【WEB面談可】
販売状況、見学、詳細を知りたい方はこちら!
お電話の際は「連合隊の物件」とお伝えください。
新着 情報掲載期限:あと29日(更新日 2025/12/5)
- 物件写真・概要
- 周辺地図
-
▼クリックで左の拡大画像が変わります。 すべての写真を拡大
-
キッチン及びダイニング。キッチン背面にはキッチン収納スペース
-
建物面積106.41平米(32.18坪)
-
外壁材は白系とグレー系を使用し、アクセントを付けています
-
リビング17.5帖、リビング収納2ヵ所有
-
人工大理石天板キッチン(食洗機付き)
-
ガスコンロ(都市ガス)
-
三面鏡洗面化粧台
-
1坪タイプのユニットバス
-
1階2階にトイレ有
-
洋室6帖(クローゼット有)
-
洋室5.4帖(クローゼット有)
-
洋室5.4帖(クローゼット有)
-
主寝室7.4帖(クローゼット有)
-
階段及び手摺は、床材や建具に合わせたナチュラル色
-
階段下収納、床下点検口有
-
収納力のある、玄関収納
-
玄関ホール。奥にトイレ・洗面室・浴室と続きます
-
断熱玄関ドア。外付けポスト、モニター付きインターホン
【WEB面談可】
販売状況、見学、詳細を知りたい方はこちら!おすすめポイント
- 築3年以内
- 駐車2台以上可
- 複数路線利用可
- 近くて便利!徒歩5分以内にある施設
- 2分
2分- 5分
5分- 周辺施設を地図で確認
交通色がついているアイコンをクリックすると、本物件までの道順を見ることができます。
物件概要
建物の階建 地上2階建 主要採光面 構造 木造 接道状況 二方(除角地) - 北西側幅6.00mの公道に接道
- 北東側幅10.90mの公道に接道
都市計画区域 その他(市街化) 私道負担 地目/地勢 宅地 国土法届出 土地権利 所有権 用途地域 - 第1種低層住居専用地域(建ぺい率:50% / 容積率:80%)
引渡し 現況 その他(完成済み(空室)) 取引態様 仲介 物件No 12945529 仲介手数料概算 不動産会社へお問合せください 設備・特徴 - システムキッチン
- 食器洗乾燥機
- トイレ2ヶ所以上
- 温水洗浄トイレ
- 浴室乾燥機
- フローリング
- シューズボックス
- 複数路線利用可
- 全居室収納あり
- 浴室1坪以上
- シューズインクローゼット
- その他:駐車2台
備考 JR「新琴似」駅徒歩8分・地下鉄南北線「麻生」駅徒歩17分の2路線を使っていただける物件です。現地ご内覧頂けます。是非一度お越しくださいませ。 学区色がついているアイコンをクリックすると、本物件までの道順を見ることができます。
主な周辺施設
- 新琴似北小学校約380m(徒歩5分)
- 新琴似中学校約670m(徒歩9分)
- セイコーマートおおば店約580m(徒歩8分)
- マックスバリュ新琴似店約570m(徒歩8分)
- 新琴似北公園約150m(徒歩2分)
-
-
ホームページはこちら
北海道知事 石狩(10) 第3900号
ジン不動産販売(株) 【WEB面談可】- 加入団体
- (公社)北海道宅地建物取引業協会
- 保証協会
- (公社)全国宅地建物取引業保証協会
- 公正取引協議会
- (一社)北海道不動産公正取引協議会
※連合隊は物件情報の精度向上に努めています:「物件情報に誤りがある」「成約済みである」などお気付きの点がございましたらこちらよりご連絡ください。
写真枚数:18枚
キッチン及びダイニング。キッチン背面にはキッチン収納スペース
建物面積106.41平米(32.18坪)
外壁材は白系とグレー系を使用し、アクセントを付けています
リビング17.5帖、リビング収納2ヵ所有
人工大理石天板キッチン(食洗機付き)
ガスコンロ(都市ガス)
三面鏡洗面化粧台
1坪タイプのユニットバス
1階2階にトイレ有
洋室6帖(クローゼット有)
洋室5.4帖(クローゼット有)
洋室5.4帖(クローゼット有)
主寝室7.4帖(クローゼット有)
階段及び手摺は、床材や建具に合わせたナチュラル色
階段下収納、床下点検口有
収納力のある、玄関収納
玄関ホール。奥にトイレ・洗面室・浴室と続きます
断熱玄関ドア。外付けポスト、モニター付きインターホン
【ジン不動産グループ】住まいをもっと豊かに。
ジン不動産販売は、仲介事業(土地、中古住宅など)及び受託販売事業(新築マンション、新築戸建てなど)を行っています。ジン不動産グループの販売事業を担い、幅広くニーズにお応えし実績を残しております。