小樽市蘭島1丁目27番5号 事務所
ここに注目!560坪の広大な土地、複数台駐車可能
この物件は、仲介手数料がかかりません。
この物件の売主は、情報を掲載している不動産会社です。仲介物件ではないため、仲介手数料は発生しません。
| 価格 |
2,800万円
|
|---|---|
| 建物面積 | 149.04m² (45.08坪) |
| 土地面積 | 1852m² (560.23坪)(公簿) |
| 住所 | 北海道小樽市蘭島1-27-5 |
| 交通 | 中央バス「蘭島神社通」停 (徒歩5分)|蘭島駅(徒歩10分)道順を見る |
| 築年月 | 築12年(2014年5月) |
| 駐車場 |
あり
|
| 用途地域 |
|
販売状況、見学、詳細を知りたい方はこちら!
お電話の際は「連合隊の物件」とお伝えください。
情報掲載期限:あと29日(更新日 2026/5/13)
- 物件写真・概要
- 周辺地図
-
販売状況、見学、詳細を知りたい方はこちら!
おすすめポイント
- 駐車場あり
交通色がついているアイコンをクリックすると、本物件までの道順を見ることができます。
- 蘭島駅JR函館本線徒歩10分(約805m)
- 中央バス「蘭島神社通」停 徒歩5分
物件概要
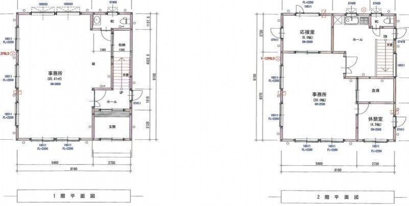
建物の階建 地上2階建 総戸数 1戸 主要採光面 構造 木造 接道状況 一方 - 北側幅16.75mの公道に32.18m接道
都市計画区域 市街化区域 私道負担 地目/地勢 原野 / 雑種地 国土法届出 土地権利 所有権 用途地域 - 第1種住居地域(建ぺい率:60% / 容積率:200%)
引渡し 相談 現況 空き 取引態様 売主 物件No 仲介手数料概算 取引態様が売主なので仲介手数料は不要です 設備・特徴 - 幹線道路沿い
備考 建築基準法第22条区域 宅地造成工事規制区域 小樽市各条例 主な周辺施設色がついているアイコンをクリックすると、本物件までの道順を見ることができます。
-
※連合隊は物件情報の精度向上に努めています:「物件情報に誤りがある」「成約済みである」などお気付きの点がございましたらこちらよりご連絡ください。
写真枚数:21枚
平成5年の創業以来、小樽、札幌を中心に圏内の不動産売買、不動産売買仲介、不動産コンサルタント、小規模宅地の分譲販売を業として営業しております。