【リピーター・紹介率81%】30秒で解る「日本サーブ株式会社」
ここに注目!広さ・光に配慮した、広々約22.5帖のLDK 外壁にはガルバリウム鋼板と道南杉を使用で上質感を演出 南東角地 建築家が設計に関与した、一点物の住宅 デザイン性と住み心地を両立した家 素材選びや空間設計に配慮したsuminoie仕様
| 価格 |
4,980万円
|
|---|---|
| 建物面積 | 122.23m² (36.97坪) |
| 土地面積 | 153.41m² (46.4坪)(公簿) |
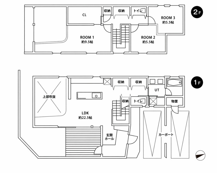
| 間取り | 3LDK1階:LDK22.5帖 / 2階:洋室9.5帖 洋室5.5帖 洋室5.5帖 |
| 住所 | 北海道札幌市豊平区中の島一条9-6-8 |
| 交通 | じょうてつバス 「中の島1条10丁目」停(徒歩2分)|幌南小学校前駅(徒歩18分)|澄川駅(徒歩20分)|南平岸駅(徒歩20分)|東屯田通駅(徒歩21分)道順を見る |
| 築年月 | 築4年(2022年1月) |
| 駐車場 |
あり 駐車可能台数:2台
|
【WEB面談可】
販売状況、見学、詳細を知りたい方はこちら!
お電話の際は「連合隊の物件」とお伝えください。
情報掲載期限:あと25日(更新日 2026/4/16)
- 物件写真・概要
- 周辺地図
-
【WEB面談可】
販売状況、見学、詳細を知りたい方はこちら!おすすめポイント
- 築5年以内
- 駐車2台以上可
- 角地
- 南向き
- 都市ガス
- 近くて便利!徒歩5分以内にある施設
- 2分
2分- 3分
3分- 3分
3分- 周辺施設を地図で確認
交通色がついているアイコンをクリックすると、本物件までの道順を見ることができます。
- 幌南小学校前駅札幌市電山鼻線徒歩18分(約1.4km)
- 澄川駅札幌市営地下鉄南北線徒歩20分(約1.6km)
- 南平岸駅札幌市営地下鉄南北線徒歩20分(約1.6km)
- 東屯田通駅札幌市電山鼻線徒歩21分(約1.7km)
- じょうてつバス 「中の島1条10丁目」停徒歩2分
物件概要
建物の階建 地上2階建 主要採光面 南 構造 木造 バルコニー あり- ウッドデッキ・テラス
接道状況 角地 - 東側幅8.00mの公道に接道
- 南側幅8.00mの公道に接道
都市計画区域 市街化区域 私道負担 地目/地勢 宅地 地勢:平坦 国土法届出 不要 土地権利 所有権 用途地域 - 第1種住居地域(建ぺい率:60% / 容積率:200%)
引渡し 相談 現況 空き 施工業者 株式会社ホーム企画センター 取引態様 仲介 物件No K-686 仲介手数料概算 170万9,400円(金額は概算です。正確な金額は不動産会社へお問合せ下さい) 設備・特徴 - 角地
- 整形地
- 閑静な住宅街
- 物置
- ウォークインクローゼット
- シューズボックス
- トイレ2ヶ所以上
- 温水洗浄トイレ
- シャワー付洗面化粧台
- IHクッキングヒーター
- 都市ガス
- エコジョーズ
- 吹き抜け
- 浴室暖房
- コンロ3口以上
- 食器洗乾燥機
- エアコン付
- ガス暖房
- モニタ付インターホン
備考 ※日本人の方限定でご紹介させて頂きます※売主様海外居住の為、源泉徴収税があります。 学区色がついているアイコンをクリックすると、本物件までの道順を見ることができます。
主な周辺施設色がついているアイコンをクリックすると、本物件までの道順を見ることができます。
-
ホームページはこちら
北海道知事 石狩(7) 第6089号
日本サーブ(株) 【WEB面談可】〒060-0042
北海道札幌市中央区大通西7丁目2-2
アセットプランニング大通ビル(旧ダイヤビル) 2FTEL:011-272-3567
FAX:011-272-3568
営業時間:9:15~17:45
定休日:毎週 日曜・祝日
- 加入団体
- (公社)北海道宅地建物取引業協会
- 保証協会
- (公社)全国宅地建物取引業保証協会
※連合隊は物件情報の精度向上に努めています:「物件情報に誤りがある」「成約済みである」などお気付きの点がございましたらこちらよりご連絡ください。
写真枚数:26枚
▲上記 【リピーター・紹介率81%】30秒で解る「日本サーブ株式会社」も是非ご覧下さい
お陰様で創業30年「不動産・建築」業界にお世話になり約40年、お客様とは「一生のお付き合い」を信条とさせて頂いております。