【リピーター・紹介率81%】30秒で解る「日本サーブ株式会社」
ベガハイツ
ここに注目!・地下鉄南北線「澄川」駅 徒歩3分! ・二方道路!(但し、東側前面道路との間に高低差有) ・2018年9月屋上防水改修工事済 ・2021年4月給水ポンプ交換工事済 ・101、302号室以外はTVモニター付インターホン、内窓サッシ設置済 ・102・202・401号室はウインドエアコン設置済
| 価格 |
3,280万円
利回り9.8%
満室時想定年収:321万6,000円
|
|---|---|
| 住所 | 北海道札幌市南区澄川四条1-4-12 |
| 交通 | 澄川駅(徒歩3分)道順を見る |
| 築年月 | 築36年(1989年7月) |
| 構造 | 鉄骨造 |
| 面積 | 建物:214.03m² (64.74坪)/ 土地:108.68m² (32.87坪)(公簿) |
| 現況 | 総戸数8戸 一部賃貸中 |
【WEB面談可】
販売状況、見学、詳細を知りたい方はこちら!
お電話の際は「連合隊の物件」とお伝えください。
新着 情報掲載期限:あと29日(更新日 2026/1/26)
- 物件写真・概要
- 周辺地図
-
【WEB面談可】
販売状況、見学、詳細を知りたい方はこちら!おすすめポイント
- リフォーム済み
- 駅徒歩3分以内
交通色がついているアイコンをクリックすると、本物件までの道順を見ることができます。
物件概要
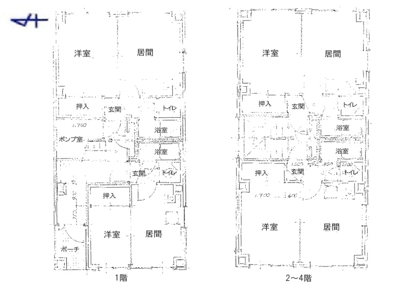
建物の階建 地上4階建 間取り 1DK×8戸 駐車場 あり 駐車場台数:2台接道状況 二方(除角地) - 東側幅8.00mの道に接道
- 西側幅6.00mの道に接道
都市計画区域 市街化区域 用途地域 - 第1種中高層住居専用地域(建ぺい率:60% / 容積率:200%)
私道負担 地目/地勢 宅地 地勢:平坦 国土法届出 土地権利 所有権 引渡し 相談 取引態様 仲介 物件No 14693 仲介手数料概算 114万8,400円(金額は概算です。正確な金額は不動産会社へお問合せ下さい) 修繕履歴 - 2018年9月頃に部分的にリフォームしています。施工内容:屋上防水改修工事済
- 2021年4月頃に部分的にリフォームしています。施工内容:給水ポンプ交換工事済
設備・特徴 - バス/トイレ別
備考 101、302号室以外はTVモニター付インターホン、内窓サッシ設置済、102・202・401号室はウインドエアコン設置済、LPG給湯器、灯油FFストーブ 主な周辺施設色がついているアイコンをクリックすると、本物件までの道順を見ることができます。
-
ホームページはこちら
北海道知事 石狩(7) 第6089号
日本サーブ(株) 【WEB面談可】〒060-0042
北海道札幌市中央区大通西7丁目2-2
アセットプランニング大通ビル(旧ダイヤビル) 2FTEL:011-272-3567
FAX:011-272-3568
営業時間:9:15~17:45
定休日:毎週 日曜・祝日
- 加入団体
- (公社)北海道宅地建物取引業協会
- 保証協会
- (公社)全国宅地建物取引業保証協会
※連合隊は物件情報の精度向上に努めています:「物件情報に誤りがある」「成約済みである」などお気付きの点がございましたらこちらよりご連絡ください。
写真枚数:9枚
外観
間取り図
室内
室内
室内
室内
玄関
浴室
トイレ
▲上記 【リピーター・紹介率81%】30秒で解る「日本サーブ株式会社」も是非ご覧下さい
お陰様で創業30年「不動産・建築」業界にお世話になり約40年、お客様とは「一生のお付き合い」を信条とさせて頂いております。