ダイアパレス北五条通
ここに注目!札幌市中央区に佇む「ダイアパレス北五条通」札幌市営地下鉄東西線「西28丁目」駅や「西18丁目」駅へ徒歩10分と、中心部へのアクセスもスムーズで、日々の通勤・通学が快適。 専有面積42.47㎡の2DKは、お一人暮らしからお二人での生活まで、ゆったりとお過ごしいただける広さです。9階部分の西向きバルコニーからは、開放感あふれる景色が楽しめ、日々の疲れを癒してくれるでしょう。室内は2022年に給湯器交換、2016年にはクロスやカーペットの貼替も行われており、清潔感のある空間が保たれています。システムキッチンや独立洗面台、室内洗濯機置場など、暮らしを豊かにする設備も充実していますよ。 徒歩圏内にはスーパーやコンビニ、ドラッグストアが揃い、忙しい毎日でもお買い物が便利に済ませられます。現在賃貸中ですので、オーナーチェンジ物件として月々安定した収入が期待できる面も魅力です。
| 価格 |
928万円
利回り7.5%
満室時想定年収:69万6,000円
管理費9,190円/月修繕積立金6,660円/月
|
|---|---|
| 住所 | 北海道札幌市中央区北五条西20-1-11 |
| 交通 | 西28丁目駅(徒歩10分)|西18丁目駅(徒歩10分)|円山公園駅(徒歩11分)道順を見る |
| 築年月 | 築36年(1990年2月) |
| 間取・専有 |
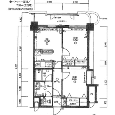
2DK(42.47m²)└ 9階:DK7.7帖 洋室6帖 洋室5.2帖
|
| 所在階 | 9階(903) / 地上11階建 |
| 現況 | 賃貸中 |
販売状況、見学、詳細を知りたい方はこちら!
お電話の際は「連合隊の物件」とお伝えください。
新着 情報掲載期限:あと30日(更新日 2026/4/4)
- 物件写真・概要
- 周辺地図
-
販売状況、見学、詳細を知りたい方はこちら!
おすすめポイント
- 賃貸中
- リフォーム済み
- バス/トイレ別
- オートロック
- エレベーター
- 2階以上
交通色がついているアイコンをクリックすると、本物件までの道順を見ることができます。
物件概要
土地権利 所有権 主要採光面 西 構造 鉄筋コンクリート(RC)造 駐車場 なしバルコニー あり(7.3m²)管理形態 全部委託 管理組合 有 引渡し 相談 管理人 日勤 取引態様 仲介 物件No 仲介手数料概算 37万2,240円(金額は概算です。正確な金額は不動産会社へお問合せ下さい) 修繕履歴 - 2022年5月頃に部分的にリフォームしています。施工内容:給湯機交換
- 2016年4月頃にリビング・キッチン・トイレをリフォームしています。施工内容:クロス・カーペット・クッションフロア貼替
設備・特徴 - エレベーター
- 室内洗濯機置場
- シューズボックス
- バス/トイレ別
- 独立洗面台
- システムキッチン
- ガスコンロ
- LPガス
- オートロック
備考 主な周辺施設色がついているアイコンをクリックすると、本物件までの道順を見ることができます。
-
※連合隊は物件情報の精度向上に努めています:「物件情報に誤りがある」「成約済みである」などお気付きの点がございましたらこちらよりご連絡ください。
写真枚数:18枚
高利回り物件,非公開物件多数揃えております。それぞれのお客様のニーズに合わせて親身に応対いたしますので、お問い合わせ、ご相談 お気軽にお待ちしております♪