川沿12-4戸建
ここに注目!二世帯住宅です!1階3LDK、2階3LDK それぞれにキッチン、浴室、トイレがありますので、世帯別で家族皆様でのびのびと暮らせます♪面積214.67㎡、土地面積235.76㎡とゆとりある空間で、プライベートもしっかり確保しながら、家族の絆を深めることができますね。 高台に位置する角地で、閑静な住宅街に佇むこのお家は、南向きの窓から明るい光が差し込み、快適な毎日を過ごせるでしょう。車庫も完備しており、お車をお持ちの方も安心です。室内はフローリングや出窓が配され、開放的な雰囲気。 セブンイレブンまで徒歩3分、ラッキー川沿店まで徒歩9分、南が丘公園まで徒歩11分
| 価格 |
2,800万円
|
|---|---|
| 建物面積 | 214.67m² (64.93坪) |
| 土地面積 | 235.76m² (71.31坪)(公簿) |
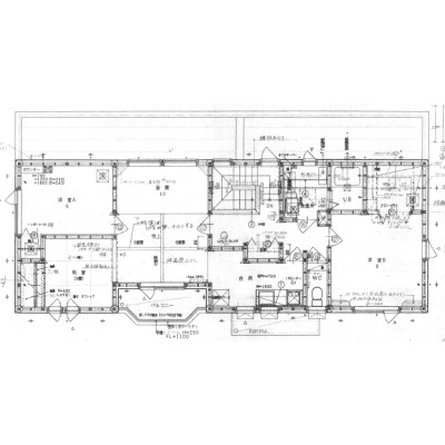
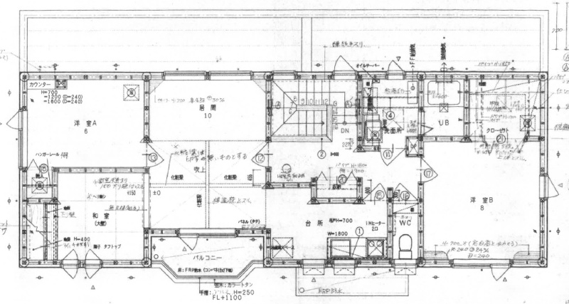
| 間取り | 二世帯型1階:K6.1帖 LD12.2帖 和室8帖 洋室8帖 洋室7.5帖 / 2階:LD10帖 K4帖 洋室6帖 和室4.5帖 洋室8帖 |
| 住所 | 北海道札幌市南区川沿十二条4-3-10 |
| 交通 | じょうてつバス 「川沿12条4丁目」停(徒歩5分) |
| 築年月 | 築26年(2000年2月) |
| 駐車場 |
あり 駐車可能台数:2台
車庫 |
販売状況、見学、詳細を知りたい方はこちら!
お電話の際は「連合隊の物件」とお伝えください。
情報掲載期限:あと30日(更新日 2026/2/11)
- 物件写真・概要
- 周辺地図
-
販売状況、見学、詳細を知りたい方はこちら!
おすすめポイント
- 駐車2台以上可
- 車庫あり
- 角地
- 南向き
- 近くて便利!徒歩5分以内にある施設
- 3分
3分- 周辺施設を地図で確認
交通
- じょうてつバス 「川沿12条4丁目」停徒歩5分
物件概要
建物の階建 地上2階 地下1階建 主要採光面 南 構造 木造 バルコニー あり- ウッドデッキ・テラス
接道状況 角地 - 南側幅7.80mの公道に19.70m接道
- 東側幅7.00mの公道に8.78m接道
都市計画区域 市街化区域 私道負担 地目/地勢 宅地 国土法届出 土地権利 所有権 用途地域 - 第1種低層住居専用地域(建ぺい率:50% / 容積率:80%)
引渡し 相談 現況 入居中 施工業者 土屋ホーム 取引態様 仲介 物件No 仲介手数料概算 99万円(金額は概算です。正確な金額は不動産会社へお問合せ下さい) 設備・特徴 - 角地
- 高台に立地
- 閑静な住宅街
- 車庫あり
- 出窓
- フローリング
- トイレ2ヶ所以上
- ウォークインクローゼット
- コンロ3口以上
- IHクッキングヒーター
- システムキッチン
- カウンターキッチン
- 食器洗乾燥機
- エアコン付
- 灯油暖房
- モニタ付インターホン
備考 学区色がついているアイコンをクリックすると、本物件までの道順を見ることができます。
主な周辺施設色がついているアイコンをクリックすると、本物件までの道順を見ることができます。
-
※連合隊は物件情報の精度向上に努めています:「物件情報に誤りがある」「成約済みである」などお気付きの点がございましたらこちらよりご連絡ください。
写真枚数:5枚
平面図1階
2階平面図