コーポきむらⅡ
ここに注目!全8戸中1室のみ空室と、高い稼働率で安定した家賃収入が期待できます。 交通アクセスも良好で、中央・千歳相互観光・道南バス「富士4丁目」停まで徒歩2分と、日々の移動にも大変便利な立地です。 周辺環境も充実しており、ドン・キホーテが徒歩3分、コンビニや病院、スーパーも身近にあり立地も魅力的です。 敷地内には戸数分、8台の駐車場も完備しています。 引き渡しは令和8年4月以降、現状渡しとなります。
| 価格 |
4,800万円
利回り8.62%
満室時想定年収:414万円
|
|---|---|
| 住所 | 北海道千歳市信濃4-20-3 |
| 交通 | 長都駅(車で4分)|千歳駅(車で7分)|中央・千歳相互観光・道南バス 「富士4丁目」停(徒歩2分)道順を見る |
| 築年月 | 築36年(1989年4月) |
| 構造 | 木造 |
| 面積 | 建物:397.48m² (120.23坪)/ 土地:503m² (152.15坪) |
| 現況 | 空室1室のみ(総戸数8戸中 7戸賃貸中) |
販売状況、見学、詳細を知りたい方はこちら!
お電話の際は「連合隊の物件」とお伝えください。
新着 情報掲載期限:あと30日(更新日 2026/1/15)
- 物件写真・概要
- 周辺地図
-
販売状況、見学、詳細を知りたい方はこちら!
おすすめポイント
- リフォーム済み
- 土地100坪超
- 空室が1室のみ
交通色がついているアイコンをクリックすると、本物件までの道順を見ることができます。
- 長都駅JR千歳線車4分(約1.6km)
- 千歳駅JR千歳線車7分(約2.5km)
- 中央・千歳相互観光・道南バス 「富士4丁目」停徒歩2分
物件概要
建物の階建 地上2階建 間取り 2DK×7戸、1DK×1戸 駐車場 駐車場台数:8台接道状況 角地 - 西側幅18.18mの公道に14.55m接道
- 南側幅23.63mの公道に10.90m接道
都市計画区域 市街化区域 用途地域 - 第1種住居地域(建ぺい率:60% / 容積率:200%)
私道負担 地目/地勢 雑種地 地勢:平坦 国土法届出 土地権利 所有権 引渡し 相談(令和8年4月以降) 取引態様 仲介 物件No 仲介手数料概算 165万円(金額は概算です。正確な金額は不動産会社へお問合せ下さい) 修繕履歴 - 1997年5月頃に物件全体を部分的にリフォームしています。施工内容:屋根塗装
- 2004年5月頃に物件全体を部分的にリフォームしています。施工内容:給水給湯配管取替
- 2017年10月頃に物件全体を部分的にリフォームしています。施工内容:物置取替
- 2022年4月頃に物件全体を部分的にリフォームしています。施工内容:玄関ドア取替
- 2023年12月頃に物件全体を部分的にリフォームしています。施工内容:火災報知器交換
設備・特徴 - 角地
備考 現状渡し 主な周辺施設色がついているアイコンをクリックすると、本物件までの道順を見ることができます。
- セブンイレブン千歳富士4丁目店約444m(徒歩6分)
- セイコーマート千歳信濃店約489m(徒歩7分)
- 千歳わかば幼稚園約675m(徒歩9分)
- 市立千歳市民病院約850m(徒歩11分)
- フードD365千歳食彩館約1.2km(徒歩15分)
- 北海道千歳北陽高校約1.2km(徒歩15分)
- 第二メリー幼稚園約1.1km(徒歩13分)
- ドン・キホーテ千歳店約180m(徒歩3分)
- サツドラ千歳店約830m(徒歩12分)
- ダイイチ千歳店約1km(徒歩15分)
-
※連合隊は物件情報の精度向上に努めています:「物件情報に誤りがある」「成約済みである」などお気付きの点がございましたらこちらよりご連絡ください。
写真枚数:9枚
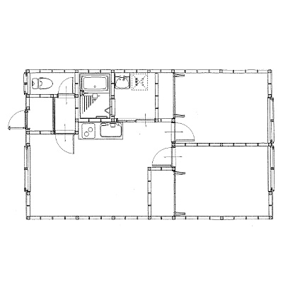
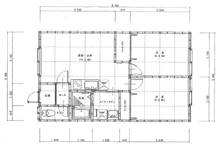
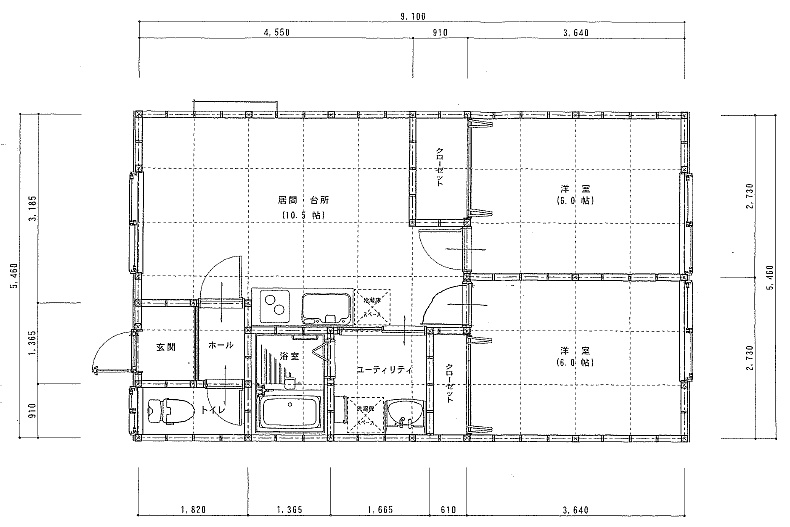
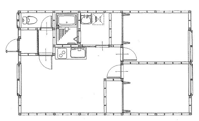
1号室平面図
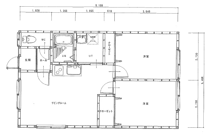
2号室平面図
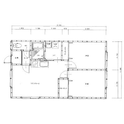
3号室平面図
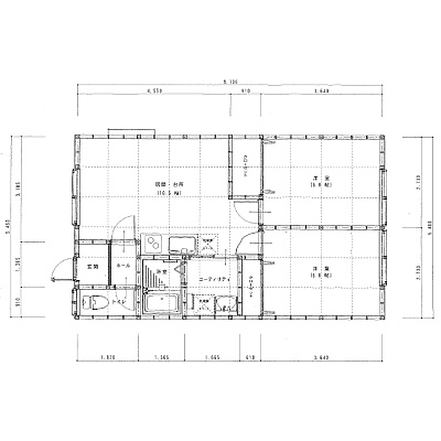
5号室平面図
6・8号室平面図
7号室平面図
各物件のご案内は随時させていただいております。お電話、メール等でお問い合わせください。
メールアドレス:【miki-home@cream.plala.or.jp】 土日祝日はお休みをいただいており、その間のお問い合わせは翌営業日以降のご連絡となります。 何卒ご理解くださいますようお願い申し上げます。