レーベンハイムA・B・C棟【三棟一括】
ここに注目!札幌市白石区に、魅力的な【三棟一括】一棟アパート「レーベンハイムA・B・C棟」が登場しました!バス停「川北橋」まで徒歩1分の利便性が光る好立地です。 投資物件として特に注目いただきたいのは、想定利回り9.71%という点。さらに、嬉しい現在満室稼働中につき、購入後すぐに安定した家賃収入が期待できます。2LDKと3LDKの複合間取りで、多様なライフスタイルに対応。全12戸に対して、24台分の広々とした駐車場を確保しており、入居者様の快適な暮らしを支えます。 住環境も良好。南と西に接道する角地のため、日当たりや風通しに恵まれています。人気のバス・トイレ別設備も完備。周辺にはコンビニや公園、高校などが徒歩圏内に充実しており、生活利便性も申し分ありません。穏やかな第一種低層住居専用地域に位置しており、住みやすさも兼ね備えています。 安定した収益と魅力的な条件が揃ったこの物件、価格は9,600万円です。ぜひこの機会にご検討ください。詳細資料のご請求や内覧のご希望など、お気軽にお問い合わせください。 ※2025年全室エアコン新設工事済
| 価格 |
9,600万円
利回り9.71%
満室時想定年収:932万4,000円
|
|---|---|
| 住所 | 北海道札幌市白石区川北五条1丁目9-5 |
| 交通 | 中央バス 「川北橋」停(徒歩1分) |
| 築年月 | 築31年(1995年2月) |
| 構造 | 軽量鉄骨造 |
| 面積 | 建物:834.44m² (252.41坪)/ 土地:1617.28m² (489.22坪)(公簿) |
| 現況 | 現在満室(総戸数12戸中 12戸賃貸中) |
販売状況、見学、詳細を知りたい方はこちら!
お電話の際は「連合隊の物件」とお伝えください。
情報掲載期限:あと15日(更新日 2026/4/13)
- 物件写真・概要
- 周辺地図
-
販売状況、見学、詳細を知りたい方はこちら!
おすすめポイント
- 現在満室
- 土地100坪超
- 戸数分駐車場あり
- 複数棟一括売り
交通
- 中央バス 「川北橋」停徒歩1分
物件概要
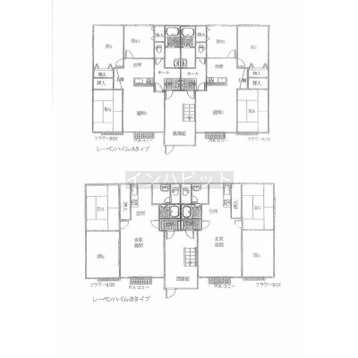
建物の階建 地上2階建 間取り 2LDK×4戸、3LDK×8戸 駐車場 あり 駐車場台数:24台接道状況 角地 - 南側幅18.00mの公道に接道
- 西側幅10.00mの公道に接道
都市計画区域 市街化区域 用途地域 - 第1種低層住居専用地域(建ぺい率:50% / 容積率:80%)
私道負担 なし 地目/地勢 宅地 地勢:平坦 国土法届出 不要 土地権利 所有権 引渡し 相談 取引態様 仲介 物件No 仲介手数料概算 不動産会社へお問合せください 設備・特徴 - 複数棟一括売り
- 角地
- バス/トイレ別
備考 主な周辺施設色がついているアイコンをクリックすると、本物件までの道順を見ることができます。
-
ホームページはこちら
北海道知事 石狩(4) 第7446号
インハビット(株)
※連合隊は物件情報の精度向上に努めています:「物件情報に誤りがある」「成約済みである」などお気付きの点がございましたらこちらよりご連絡ください。
写真枚数:11枚
■お探している物件の条件を是非お教え下さい、最適な不動産購入のお手伝いをさせて頂きます■ ■買取強化中、査定だけでも是非ともお声をかけて下さい■ ■収益非公開物件も多数取り扱いしております■