長沼町売り店舗
ここに注目!8900万円→7500万円に値下げしました!田園風景に佇む木板張りのレストラン。駐車場から店内へのアプローチには色とりどりの木々がお客様をお出迎えいたします。店内の大きな窓からは、マオイの山並みだけでなく樽前山や恵庭岳も一望できます。春夏秋冬いろいろな表情を見せる景色とともに過ごしてみませんか?現状はレストランですが、ご自宅や事務所、ホテルなどに用途変更するのも良いですね!大きな柱と梁で構成された吹き抜けのある造りは迫力がありますので是非ご覧ください。
| 価格 |
7,500万円
|
|---|---|
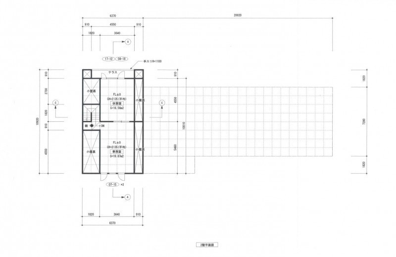
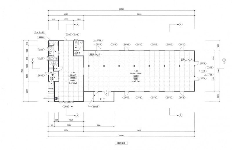
| 建物面積 | 252.7m² (76.44坪) |
| 土地面積 | 2144.08m² (648.58坪)(公簿) |
| 住所 | 北海道夕張郡長沼町東7線南3 |
| 交通 | |
| 築年月 | 築19年(2006年4月) |
| 駐車場 |
あり 駐車可能台数:30台
車のサイズにより20~30台ほど駐車可能です。 |
| 用途地域 |
|
販売状況、見学、詳細を知りたい方はこちら!
お電話の際は「連合隊の物件」とお伝えください。
情報掲載期限:あと14日(更新日 2025/12/11)
- 物件写真・概要
- 周辺地図
-
販売状況、見学、詳細を知りたい方はこちら!
おすすめポイント
- 駐車2台以上可
- スケルトン
- 出店するなら…この業種がおすすめ!
- 飲食全般(重飲食含む)

- 喫茶・カフェ(軽飲食)

- バー・クラブ・スナック

- 小売・物販

- 美容・健康・介護

- 医療

- 教育・スクール

- 事務所

- アミューズメント

物件概要
建物の階建 地上2階建 総戸数 1戸 主要採光面 南 構造 木造 居抜き情報 接道状況 一方 - 北側幅9.00mの公道に48.18m接道
都市計画区域 都市計画区域外 私道負担 地目/地勢 宅地 地勢:平坦 国土法届出 土地権利 所有権 用途地域 - 無指定
引渡し 相談 現況 入居中(レストラン営業はしておりません。) 施工業者 武部建設株式会社 建築確認番号 第H17確認建築北海道庁03446号 取引態様 仲介 物件No 仲介手数料概算 254万1,000円(金額は概算です。正確な金額は不動産会社へお問合せ下さい) 設備・特徴 - 灯油暖房
- スケルトン
備考 価格改定になりました! 主な周辺施設
- 道の駅「マオイの丘公園」 車で7分約4.5km(徒歩57分)
-
ホームページはこちら
北海道知事 石狩(6) 第6204号
(有)一成不動産- 加入団体
- (公社)北海道宅地建物取引業協会、(一社)全国賃貸不動産管理業協会
- 保証協会
- (公社)全国宅地建物取引業保証協会
- 公正取引協議会
- (一社)北海道不動産公正取引協議会
※連合隊は物件情報の精度向上に努めています:「物件情報に誤りがある」「成約済みである」などお気付きの点がございましたらこちらよりご連絡ください。
写真枚数:19枚
千歳市・恵庭市近郊の不動産のことなら一成不動産へ!!
社員全員が宅地建物取引士の資格を持っている100%取引士在籍店です。☆不動産売買の仲介・代理・買取☆不動産賃貸の管理・仲介☆お任せ下さい!親切、丁寧、迅速に対応いたします!!