VILLA苗穂札幌ビールパークホカンス(旅館業)
ここに注目!札幌市東区に位置する「VILLA苗穂札幌ビールパークホカンス」は、民泊として運用中の魅力的な物件です。2022年築の築浅で、VILLAのような洗練されたデザインが特徴。広々とした78.56㎡の空間は、ゲストに快適な滞在を提供します。 周辺には「アリオ札幌」が徒歩8分圏内にあり、スターバックスや無印良品、ダイソーなど、日常の買い物からレジャーまで充実した環境です。また、観光名所の「サッポロビール園」も徒歩9分と近く、観光客にも喜ばれる立地です。JR函館本線・千歳線「苗穂」駅へは徒歩11分。駐車場も完備しており、車でのアクセスも便利です。 札幌市東区の築浅ホテル物件、既に旅館業を取得し実績収入もあります! ・年間収入約1,037万円、表面利回り10.8%程度(2025年1月~2025年12月 予約含む)
| 価格 |
9,600万円
利回り10.8%
満室時想定年収:1,037万円
|
|---|---|
| 住所 | 北海道札幌市東区北八条東 (詳細非公開) |
| 交通 | 苗穂駅(徒歩11分) |
| 築年月 | 築3年(2022年8月) |
| 構造 | 木造 |
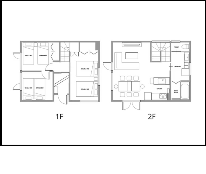
| 面積 | 建物:78.56m² (23.76坪)/ 土地:113.39m² (34.3坪)(公簿) |
| 現況 | その他(民泊) |
販売状況、見学、詳細を知りたい方はこちら!
お電話の際は「連合隊の物件」とお伝えください。
情報掲載期限:あと27日(更新日 2026/3/19)
- 物件写真・概要
- 周辺地図
-
販売状況、見学、詳細を知りたい方はこちら!
おすすめポイント
- 利回り10%超
- 築5年以内
交通
- 苗穂駅JR千歳線、JR函館本線徒歩11分
物件概要
建物の階建 地上2階建 間取り 駐車場 あり接道状況 角地 - 南側幅4.00mの公道に7.90m接道
- 西側幅4.00mの私道に10.60m接道 位置指定:有
都市計画区域 市街化区域 用途地域 - 第1種住居地域(建ぺい率:60% / 容積率:200%)
私道負担 地目/地勢 宅地 国土法届出 土地権利 所有権 引渡し 相談 取引態様 仲介 物件No 仲介手数料概算 不動産会社へお問合せください 設備・特徴 備考 主な周辺施設
- スターバックスコーヒーアリオ札幌店約566m(徒歩8分)
- 丸亀製麺アリオ札幌店約609m(徒歩8分)
- ダイソーアリオ札幌店約566m(徒歩8分)
- アリオ札幌ロフト約613m(徒歩8分)
- 無印良品アリオ札幌店約613m(徒歩8分)
- サッポロビール園約645m(徒歩9分)
- ファミリーマート札幌北8条東17丁目店約560m(徒歩7分)
- タリーズコーヒーキッズコミュアリオ札幌店約613m(徒歩8分)
- アインズ&トルペアリオ札幌店約613m(徒歩8分)
- トイザらスベビーザらス札幌店約566m(徒歩8分)
-
ホームページはこちら
北海道知事 石狩(5) 第7163号
(株)北恒不動産〒001-0011
北海道札幌市北区北十一条西4丁目2-21
リー北11条ビル 2FTEL:0120-916-468
TEL:011-707-4301
FAX:011-707-4302
営業時間:9:00~18:00
- 加入団体
- (公社)北海道宅地建物取引業協会
- 保証協会
- (公社)全国宅地建物取引業保証協会
- 公正取引協議会
- (一社)北海道不動産公正取引協議会
※連合隊は物件情報の精度向上に努めています:「物件情報に誤りがある」「成約済みである」などお気付きの点がございましたらこちらよりご連絡ください。
写真枚数:15枚
土地が欲しい!空室が埋まらない!物件に関するお悩みなど、私たち、北恒不動産にご相談ください!
お客様の生活の基盤となる住まいに関するお悩み、ご相談、ご提案等、幅広くサポートさせて頂きます!初めてで分からないこと、査定やその他疑問などお気軽にお問い合わせください!