黒川M
ここに注目!大規模修繕工事済!平成26年10月
| 価格 |
1億5,000万円
利回り10.76%
満室時想定年収:1,303万円
|
|---|---|
| 住所 | 愛知県名古屋市北区元志賀町2-125 |
| 交通 | 黒川駅(徒歩10分) |
| 築年月 | 築48年(1977年12月) |
| 構造 | 鉄筋コンクリート(RC)造 |
| 面積 | 建物:854.42m² (258.46坪)/ 土地:280.99m² (84.99坪) |
| 現況 | 総戸数19戸中 15戸賃貸中 |
販売状況、見学、詳細を知りたい方はこちら!
お電話の際は「連合隊の物件」とお伝えください。
情報掲載期限:あと28日(更新日 2025/12/24)
- 物件写真・概要
- 周辺地図
-
販売状況、見学、詳細を知りたい方はこちら!
おすすめポイント
- 利回り10%超
交通色がついているアイコンをクリックすると、本物件までの道順を見ることができます。
物件概要
建物の階建 地上5階建 間取り 駐車場 なし接道状況 - 北側10.9m公道に13.4m接面
都市計画区域 市街化区域 用途地域 - 商業地域(建ぺい率:80% / 容積率:400%)
私道負担 地目/地勢 宅地 国土法届出 土地権利 所有権 引渡し 相談 取引態様 仲介 物件No 仲介手数料概算 468万6,000円(金額は概算です。正確な金額は不動産会社へお問合せ下さい) 設備・特徴 - エレベーター
備考 収益物件(一棟売り) 主な周辺施設色がついているアイコンをクリックすると、本物件までの道順を見ることができます。
-
※連合隊は物件情報の精度向上に努めています:「物件情報に誤りがある」「成約済みである」などお気付きの点がございましたらこちらよりご連絡ください。
写真枚数:10枚
外観
外観
外観
1階平面図
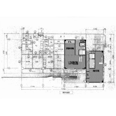
2階平面図
3階平面図
4階平面図
5階平面図