San Diego
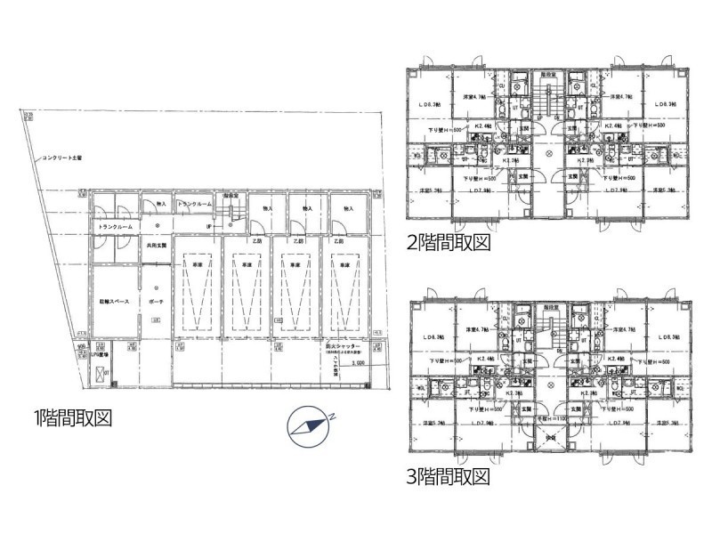
ここに注目!1LDKの8世帯満室です、JR函館本線「小樽」駅徒歩12分通勤通学便利。食品スーパー、ツルハドラッグ、コンビニが徒歩8分圏内にあるアパートなので、一人暮らしや学生さんには住みやすい立地です。 ■平成19年度築 8世帯1LDK 満室 ■オーナーチェンジ物件 ■表面利回り10.0%(年間予定家賃等収入5,016,000円) ■JR函館本線「小樽」駅徒歩12分 ■スーパー徒歩8分、コンビニ徒歩6分、郵便局徒歩5分 ■小樽駅前商業施設多く、通勤通学に便利 ■トランクルーム(4か所)、屋内駐輪スペース有 ■シャッター付車庫4台分(空無) ■駐輪スペース 【周辺環境】 ■コープさっぽろみどり店・・610m ■長崎屋小樽店・・590m ■小樽三角市場・・400m ■ツルハドラック小樽駅前店・・510m ■セブンイレブン船見坂下店・・410m ■小樽駅前郵便局・・400m ■北洋銀行小樽駅前支店・・510m
| 価格 |
5,000万円
利回り10.03%
満室時想定年収:501万6,000円
|
|---|---|
| 住所 | 北海道小樽市富岡2-15-3 |
| 交通 | |
| 築年月 | 築18年(2007年8月) |
| 構造 | その他(木・鉄筋コンクリート) |
| 面積 | 建物:446.8m² (135.15坪)/ 土地:341.15m² (103.19坪)(公簿) 専有:33.75m² (10.2坪) |
| 現況 | 現在満室(総戸数8戸中 8戸賃貸中) |
販売状況、見学、詳細を知りたい方はこちら!
お電話の際は「連合隊の物件」とお伝えください。
情報掲載期限:あと27日(更新日 2025/12/22)
- 物件写真・概要
- 周辺地図
-
販売状況、見学、詳細を知りたい方はこちら!
おすすめポイント
- 現在満室
- 利回り10%超
- 土地100坪超
物件概要
建物の階建 地上2階 地下1階建 間取り 1LDK×8戸 駐車場 あり 駐車場台数:4台組込車庫
接道状況 角地 - 南側幅4.50mの公道に17.20m接道
- 東側幅4.30mの私道に18.60m接道
都市計画区域 市街化区域 用途地域 - 第1種中高層住居専用地域(建ぺい率:60% / 容積率:200%)
私道負担 地目/地勢 宅地 国土法届出 土地権利 所有権 引渡し 即時 取引態様 仲介 物件No 仲介手数料概算 171万6,000円(金額は概算です。正確な金額は不動産会社へお問合せ下さい) 設備・特徴 - 角地
- バス/トイレ別
備考 【設備】 上下水道、北海道電力(他)、プロパン、ミニキッチン、ユニットバス、洗面化粧台、トイレ、エアコン、TV付インターホン、ガス給湯器、FF式石油ストーブ、下駄箱、トランクルーム、駐輪スペース 主な周辺施設色がついているアイコンをクリックすると、本物件までの道順を見ることができます。
-
※連合隊は物件情報の精度向上に努めています:「物件情報に誤りがある」「成約済みである」などお気付きの点がございましたらこちらよりご連絡ください。
写真枚数:5枚
西向き道路
東向き道路
北東向き道路
札幌市手稲区にある不動産会社です。
中古マンション、新築・中古一戸建て、土地の購入や売却を検討されている方は、お電話でお問合せください。