区分マンション|投資
| 価格 |
980万円
利回り9.55%
満室時想定年収:93万6,000円
管理費6,000円/月修繕積立金3,400円/月
|
|---|---|
| 住所 | 愛知県名古屋市東区泉1-22-35 |
| 交通 | 久屋大通駅(徒歩2分)|高岳駅(徒歩8分)|栄駅(徒歩9分)道順を見る |
| 築年月 | 築45年(1980年11月) |
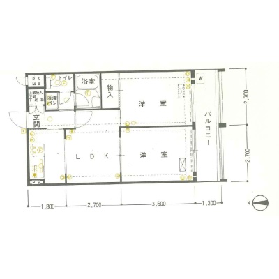
| 間取・専有 |
2LDK(42.91m²)└ 6階:洋室
|
| 所在階 | 6階(607) / 地上11階建 |
| 現況 | 賃貸中 |
販売状況、見学、詳細を知りたい方はこちら!
お電話の際は「連合隊の物件」とお伝えください。
052-350-5065
新着 情報掲載期限:あと30日(更新日 2026/1/16)
- 物件写真・概要
- 周辺地図
-
販売状況、見学、詳細を知りたい方はこちら!
おすすめポイント
- 賃貸中
- 駅徒歩3分以内
- バス/トイレ別
- オートロック
- エレベーター
- 南向き
- 2階以上
交通色がついているアイコンをクリックすると、本物件までの道順を見ることができます。
- 久屋大通駅名古屋市営地下鉄桜通線、名古屋市営地下鉄名城線駅近!徒歩2分
- 高岳駅名古屋市営地下鉄桜通線徒歩8分(約580m)
- 栄駅名古屋市営地下鉄名城線、名古屋市営地下鉄東山線、名鉄瀬戸線徒歩9分(約680m)
物件概要
土地権利 所有権 主要採光面 南 構造 鉄骨鉄筋コンクリート(SRC)造 駐車場 なしバルコニー あり(7.02m²)管理形態 全部委託 管理組合 指定なし 引渡し 相談 管理人 日勤 施工業者 戸田建設株式会社 取引態様 仲介 物件No 仲介手数料概算 38万9,400円(金額は概算です。正確な金額は不動産会社へお問合せ下さい) 設備・特徴 - 角地
- エレベーター
- 室内洗濯機置場
- 日当り良好
- バス/トイレ別
- ガスコンロ
- 都市ガス
- 防犯カメラ
- オートロック
備考 -
ホームページはこちら
愛知県知事 (7) 第17696号
(株)リードワン
※連合隊は物件情報の精度向上に努めています:「物件情報に誤りがある」「成約済みである」などお気付きの点がございましたらこちらよりご連絡ください。
写真枚数:10枚
おかげさまで41周年!私どもは’’住まい”を通じて地域社会に貢献致します!
リードワンは不動産の総合管理・売買・仲介・土地活用・資産運用から 賃貸マンション・アパート・オフィスビルの運営と管理をはじめ、そこに住む一人ひとりの暮らしをサポートします。