銭函1丁目戸建
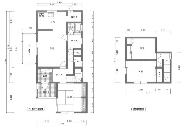
ここに注目!小樽市銭函に佇む、広々とした敷地が魅力の3LDK一戸建てをご紹介します。JR函館本線「銭函」駅まで徒歩13分。札幌方面へのアクセスも可能で、日々の通勤・通学にも便利な立地です。 土地面積約93坪のゆとりの敷地には、広々としたお庭や車庫、物置も備わり、駐車スペースも2台分確保。南向きのため日当り良好で、明るい陽光が差し込むLDK15帖はご家族団らんのひとときにぴったりです。和室や洋室、サービスルームを配した3LDKの間取りは、ご家族構成に合わせて多様な使い方が可能です。 灯油暖房、温水洗浄トイレ、冬に嬉しい玄関フードなど、暮らしを快適にする設備が充実。コンビニまで徒歩9分、スーパーまで徒歩13分と生活利便施設も身近に揃います。 現在売主様ご入居中ですが、事前にご連絡いただければ内覧可能です。リフォームのご相談も承りますので、理想の住まいを形にしてみませんか?ぜひ一度現地をご覧ください。
| 価格 |
680万円
|
|---|---|
| 建物面積 | 83.97m² (25.4坪) |
| 土地面積 | 308.18m² (93.22坪)(公簿) |
| 間取り | 3LDK1階:LDK15帖 和室6帖 / 2階:S6帖 洋室6帖 |
| 住所 | 北海道小樽市銭函1-16-23 |
| 交通 | 銭函駅(徒歩13分)道順を見る |
| 築年月 | 築49年(1976年7月) |
| 駐車場 |
あり 駐車可能台数:2台
|
販売状況、見学、詳細を知りたい方はこちら!
お電話の際は「連合隊の物件」とお伝えください。
情報掲載期限:あと30日(更新日 2025/12/26)
- 物件写真・概要
- 周辺地図
-
販売状況、見学、詳細を知りたい方はこちら!
おすすめポイント
- 駐車2台以上可
- 車庫あり
- 南向き
交通色がついているアイコンをクリックすると、本物件までの道順を見ることができます。
物件概要
建物の階建 地上2階建 主要採光面 南 構造 木造 接道状況 三方 - 西側幅18.00mの公道に17.00m接道 位置指定:無
- 南側幅6.00mの公道に18.00m接道 位置指定:無
- 東側幅5.00mの公道に13.00m接道 位置指定:無
都市計画区域 市街化区域 私道負担 なし 地目/地勢 宅地 地勢:平坦 国土法届出 不要 土地権利 所有権 用途地域 - 第1種中高層住居専用地域(建ぺい率:60% / 容積率:200%)
引渡し 相談 現況 入居中 取引態様 仲介 物件No 仲介手数料概算 33万円(金額は概算です。正確な金額は不動産会社へお問合せ下さい) 設備・特徴 - 整形地
- 車庫あり
- 物置
- 庭が広い(10坪以上)
- 玄関フード
- 日当り良好
- 温水洗浄トイレ
- LPガス
- 灯油暖房
備考 現在売主様は入居中ですが事前にご連絡頂ければ内覧は可能です。リフォーム相談可能です。 まずはお気軽にご連絡下さい。 南向き 学区色がついているアイコンをクリックすると、本物件までの道順を見ることができます。
主な周辺施設色がついているアイコンをクリックすると、本物件までの道順を見ることができます。
-
ホームページはこちら
北海道知事 石狩(6) 第6421号
不動産のパートナー〒003-0026
TEL:011-846-8001
FAX:011-846-6600
営業時間:9:00~18:00
定休日:毎週 土曜・日曜
- 加入団体
- (公社)北海道宅地建物取引業協会
- 保証協会
- (公社)全国宅地建物取引業保証協会
- 公正取引協議会
- (一社)北海道不動産公正取引協議会
※連合隊は物件情報の精度向上に努めています:「物件情報に誤りがある」「成約済みである」などお気付きの点がございましたらこちらよりご連絡ください。
写真枚数:7枚
札幌近郊のお部屋探しや、土地、マンション購入、戸建購入、収益物件、テナントなど扱っております!
【営業時間】9:00~18:00 【休日】土日休み 小回りの効く担当者が多く、土日でも案内などはご対応できます! 詳しくは物件担当者まで!