■表面利回り7.8%■120㎡超4LDKメゾネット■ル・ケレステラスドスクエアS棟■
ここに注目!■投資表面利回り7.85%■120㎡超4LDKメゾネット分譲マンション■令和8年3月セントラルヒーティングガスボイラー新品交換■台所特注ユニット収納取付■全部屋特注照明器具取付■全窓オーダーバーチカルブラインド取付■対面式システムキッチン・食器洗浄乾燥機・3口IHクッキングヒーター■シャワー付洗面化粧台・1坪以上バス・浴室に窓あります■温水便座トイレ1階・2階にあり■全居室に収納あり・玄関風除室にTR・階段下に納戸あり■暖房給湯は集中プロパンガスを熱源とするセントラルヒーティング・LEDリビングには床暖房付■オートロックモニターホン■LDKにエアコン設置あり■全室フローリング■中庭吹抜けあり■1階専用庭付■屋上にはテラスあり■ペット飼育可(規約により制限があります)■ 閑静な住宅地 ■ 設備充実 ■ 日当たり良好 ■ 大型スーパーあり ■ 公園至近 ■
| 価格 |
2,750万円
利回り7.85%
満室時想定年収:216万円
管理費8,400円/月修繕積立金3,890円/月
|
|---|---|
| 住所 | 北海道札幌市白石区北郷八条8丁目3-13 |
| 交通 | 「端穂中央停」停(徒歩5分)|端穂中央バス停より 「地下鉄東西線白石駅」停(車で23分) |
| 築年月 | 築14年(2011年10月) |
| 間取・専有 |
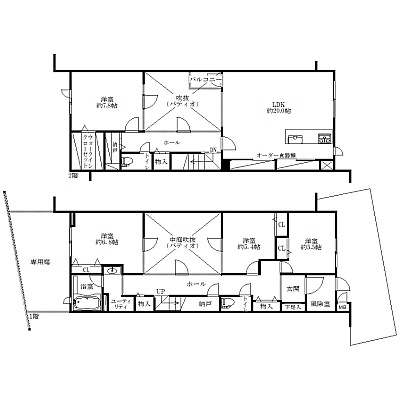
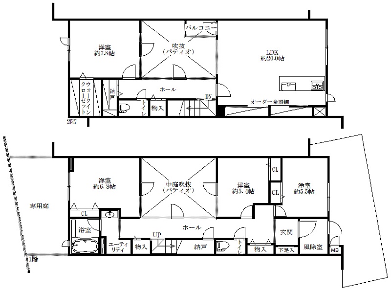
4LDK└ 1階:洋室6.8帖 洋室5.4帖 洋室5.5帖 / 2階:LDK20帖 洋室7.8帖
|
| 所在階 | 2階 / 地上2階建 |
| 現況 | その他 |
販売状況、見学、詳細を知りたい方はこちら!
お電話の際は「連合隊の物件」とお伝えください。
新着 情報掲載期限:あと29日(更新日 2026/2/26)
- 物件写真・概要
- 周辺地図
-
▼クリックで左の拡大画像が変わります。 すべての写真を拡大
-
LDK20帖超・台所特注オーダーユニット収納
-
集合玄関
-
4LDK専用庭付間取図面
-
エントランス
-
エントランス
-
LDK20帖超・特注オーダーダウンライト照明
-
2階LDK20帖超・台所特注オーダーユニット収納・床暖房
-
2階LDK20帖超・特注オーダー ダイニング照明・床暖房
-
LDK20帖超・エアコン設置
-
LDK20帖超・対面システムキッチン
-
LDK20帖超・オートロック機能付モニターホン
-
2階吹抜けより見たバルコニー・屋上テラス階段
-
2階吹抜けより見た中庭
-
2階(メxゾネット上階)ホール
-
2階(メゾネット上階)トイレ
-
2階(メゾネット上階)洋室
-
1階階段・ホール
-
1階 階段下納戸
-
1階トイレ
-
1階洋室
-
1階洋室
-
1階洋室
-
1階脱衣所内・シャワー付洗面化粧台
-
1階浴室
-
1階玄関廻り
販売状況、見学、詳細を知りたい方はこちら!
おすすめポイント
- バス/トイレ別
- ペット相談可
- オートロック
- 2階以上
- 追い焚き風呂
- 駐車場あり
交通
- 「端穂中央停」停徒歩5分
- 端穂中央バス停より 「地下鉄東西線白石駅」停車23分
物件概要
土地権利 所有権 主要採光面 構造 鉄筋コンクリート(RC)造 駐車場 あり 駐車場台数:1台1台無料
バルコニー あり管理形態 全部委託 管理組合 有 引渡し 相談 管理人 巡回 取引態様 仲介 物件No 仲介手数料概算 97万3,500円(金額は概算です。正確な金額は不動産会社へお問合せ下さい) 設備・特徴 - 駐輪場
- メゾネット
- 照明器具付
- 日当り良好
- 専用庭
- 室内洗濯機置場
- 天井高2.5m以上
- 納戸・トランクルーム
- ウォークインクローゼット
- シューズボックス
- 全居室収納あり
- バス/トイレ別
- トイレ2ヶ所以上
- 温水洗浄トイレ
- 独立洗面台
- シャワー付洗面化粧台
- 追い焚き風呂
- 浴室に窓
- 浴室1坪以上
- システムキッチン
- IHクッキングヒーター
- 食器洗乾燥機
- LPガス
- エアコン付
- ガス暖房
- モニタ付インターホン
- オートロック
- ペット相談可
- 床暖房
- フローリング
備考 分譲賃貸 ウォークインクローゼット付き 区分所有 システムキッチン ウォシュレット TVインターホン クローゼット シャンドレ メゾネットタイプ テラスハウス 主な周辺施設色がついているアイコンをクリックすると、本物件までの道順を見ることができます。
-
-
ホームページはこちら
北海道知事 石狩(6) 第6478号
(株)ハウス館
※連合隊は物件情報の精度向上に努めています:「物件情報に誤りがある」「成約済みである」などお気付きの点がございましたらこちらよりご連絡ください。
写真枚数:25枚
LDK20帖超・台所特注オーダーユニット収納
集合玄関
4LDK専用庭付間取図面
エントランス
エントランス
LDK20帖超・特注オーダーダウンライト照明
2階LDK20帖超・台所特注オーダーユニット収納・床暖房
2階LDK20帖超・特注オーダー ダイニング照明・床暖房
LDK20帖超・エアコン設置
LDK20帖超・対面システムキッチン
LDK20帖超・オートロック機能付モニターホン
2階吹抜けより見たバルコニー・屋上テラス階段
2階吹抜けより見た中庭
2階(メxゾネット上階)ホール
2階(メゾネット上階)トイレ
2階(メゾネット上階)洋室
1階階段・ホール
1階 階段下納戸
1階トイレ
1階洋室
1階洋室
1階洋室
1階脱衣所内・シャワー付洗面化粧台
1階浴室
1階玄関廻り












