■3LDK➡2LDKタイプへフルリフォーム・リノベーション■専用庭付■サンハイツ木の花■
ここに注目!■新規リノベーション3LDK➡2LDKフルリフォーム■日当たり良好専用庭付分譲マンション■近隣大型スーパー・商業施設充実■ 公園至近 閑静な住宅地■
| 価格 |
1,400万円
坪単価:約68.5万円/坪
管理費1万100円/月修繕積立金1万3,980円/月
|
|---|---|
| 間取・専有 |
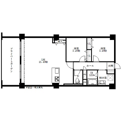
2LDK(67.56m²)└ 1階:LDK21.4帖 洋室5.28帖 / 13階:洋室5.28帖
|
| 住所 | 北海道札幌市豊平区旭町6丁目2-1 |
| 交通 | 学園前駅(徒歩9分)|中の島駅(徒歩12分)|豊平公園駅(徒歩13分)道順を見る |
| 築年月 | 築51年(1974年11月) |
| 駐車場 |
空き待ち
|
販売状況、見学、詳細を知りたい方はこちら!
お電話の際は「連合隊の物件」とお伝えください。
情報掲載期限:あと19日(更新日 2026/2/15)
- 物件写真・概要
- 周辺地図
-
販売状況、見学、詳細を知りたい方はこちら!
おすすめポイント
- 南向き
- リフォーム済み
- 都市ガス
- エレベーター
- 専用庭
- 複数路線利用可
- 近くて便利!徒歩5分以内にある施設
- 3分
3分- 周辺施設を地図で確認
交通色がついているアイコンをクリックすると、本物件までの道順を見ることができます。
物件概要
所在階/建物の階建 1階 / 地上6階建 総戸数 93戸 主要採光面 南 構造 鉄筋コンクリート(RC)造 土地権利 所有権 引渡し 相談 現況 空き 管理人 日勤 管理形態 全部委託 管理組合 指定なし 取引態様 仲介 物件No 仲介手数料概算 52万8,000円(金額は概算です。正確な金額は不動産会社へお問合せ下さい) 修繕履歴 - 2026年1月頃にリビング・キッチン・トイレ・浴室・その他の箇所をリフォームしています。
設備・特徴 - 複数路線利用可
- 閑静な住宅街
- エレベーター
- 専用庭
- 温水洗浄トイレ
- システムキッチン
- 都市ガス
- エアコン付
- 灯油暖房
- モニタ付インターホン
- 駐輪場
- 全居室収納あり
- 日当り良好
備考 全室クロス張替 TVインターホン リフォーム済み シャンドレ 学区色がついているアイコンをクリックすると、本物件までの道順を見ることができます。
主な周辺施設色がついているアイコンをクリックすると、本物件までの道順を見ることができます。
-
ホームページはこちら
北海道知事 石狩(6) 第6478号
(株)ハウス館
※連合隊は物件情報の精度向上に努めています:「物件情報に誤りがある」「成約済みである」などお気付きの点がございましたらこちらよりご連絡ください。
写真枚数:11枚
LDK
LDK約21.40帖
LDK












