■4LDK専用庭付・分譲マンション・メゾネットタイプ■ル・ケレス テラスドスクエア■S棟
ここに注目!■分譲メゾネット4LDKタイプ(123.44㎡)■特注オーダー①キッチン収納ユニット:特注オーダー②全室ダウンライト照明:特注オーダー③全室バーチカルブラインド■設備:セントラルヒーティングボイラー新品交換■設備:カウンターキッチン:システムキッチン:IHクッキングヒーター(3口:食器洗浄乾燥機:シャワー付洗面化粧台:温水洗浄便座(トイレ2ヶ所:バス1坪以上追焚機能付:浴室内に窓あり:全居室収納.・ウォークインクローゼット・階段下納戸:モニター付インンターホン:オートロック:全室フローリング:エアコン設置■付帯設備①1階専用庭:②中庭(サンルーム:③屋上テラス■ペット飼育可(管理規約制限あり■交通:JR「白石駅」/バス乗車9分:地下鉄白石駅/バス乗車23分■環境: 閑静な住宅地: 公園至近: 住環境良好: 大型スーパーあり■
| 価格 |
3,000万円
坪単価:約80.3万円/坪
管理費8,400円/月修繕積立金3,890円/月
|
|---|---|
| 間取・専有 |
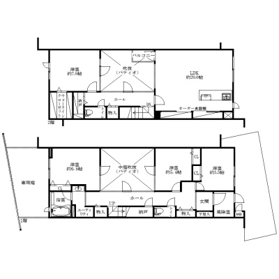
4LDK(123.44m²)└ 1階:洋室6.8帖 洋室5.5帖 洋室5.5帖 / 2階:LDK20帖 洋室7.8帖
|
| 住所 | 北海道札幌市白石区北郷八条8丁目3-16 |
| 交通 | 中央バス 「瑞穂中央停」停(徒歩5分)|白石駅(車で14分)|白石駅(車で10分)道順を見る |
| 築年月 | 築14年(2011年10月) |
| 駐車場 |
あり (無料)
駐車場無料 |
販売状況、見学、詳細を知りたい方はこちら!
お電話の際は「連合隊の物件」とお伝えください。
情報掲載期限:あと21日(更新日 2026/2/2)
- 物件写真・概要
- 周辺地図
-
▼クリックで左の拡大画像が変わります。 すべての写真を拡大
販売状況、見学、詳細を知りたい方はこちら!
おすすめポイント
- 駐車場あり
- 追い焚き風呂
- 2階以上
- 最上階
- ペット相談可
- オートロック
- 専用庭
- 近くて便利!徒歩5分以内にある施設
- 3分
3分- 周辺施設を地図で確認
交通色がついているアイコンをクリックすると、本物件までの道順を見ることができます。
- 白石駅札幌市営地下鉄東西線車14分(約4.2km)
- 白石駅JR千歳線、JR函館本線車10分(約2.6km)
- 中央バス 「瑞穂中央停」停徒歩5分
物件概要
所在階/建物の階建 2階 / 地上2階建 総戸数 12戸 主要採光面 構造 鉄筋コンクリート(RC)造 バルコニー あり土地権利 所有権 引渡し 相談 現況 空き 管理人 巡回 管理形態 全部委託 管理組合 有 取引態様 仲介 物件No 仲介手数料概算 105万6,000円(金額は概算です。正確な金額は不動産会社へお問合せ下さい) 設備・特徴 - 閑静な住宅街
- 駐輪場
- メゾネット
- 最上階
- 専用庭
- 室内洗濯機置場
- 照明器具付
- 日当り良好
- フローリング
- 吹き抜け
- 遮音フローリング
- 天井高2.5m以上
- ウォークインクローゼット
- シューズボックス
- 全居室収納あり
- トイレ2ヶ所以上
- 温水洗浄トイレ
- シャワー付洗面化粧台
- 追い焚き風呂
- 浴室1坪以上
- 浴室に窓
- IHクッキングヒーター
- コンロ3口以上
- システムキッチン
- 食器洗乾燥機
- LPガス
- エアコン付
- ガス暖房
- 24時間換気システム
- 床暖房
- オートロック
- モニタ付インターホン
- ペット相談可
- 納戸・トランクルーム
- カウンターキッチン
備考 システムキッチン ウォシュレット TVインターホン クローゼット シャンドレ メゾネットタイプ テラスハウス 学区色がついているアイコンをクリックすると、本物件までの道順を見ることができます。
主な周辺施設色がついているアイコンをクリックすると、本物件までの道順を見ることができます。
-
ホームページはこちら
北海道知事 石狩(6) 第6478号
(株)ハウス館
※連合隊は物件情報の精度向上に努めています:「物件情報に誤りがある」「成約済みである」などお気付きの点がございましたらこちらよりご連絡ください。
写真枚数:26枚
特注オーダー台所ユニット収納
LDK約20帖
LDK約20帖
LDK約20帖 エアコン設置あり
シアステムキッチンIHクッキングヒーター・食器洗浄乾燥機
中庭(サンルーム・パティオ)
2階洋室約7.8帖
2階洋室約7.8帖 ウォークインクローゼット
2階トイレ
1階階段(UP)
1階洋室約6.8帖
1階洋室約5.4帖
1階洋室約5.5帖
1階浴室
1階ユーティリティ洗面化粧台
1階トイレ
1階階段下納戸
1階ホール
1階玄関 シューズボックス
中庭・パティオ












