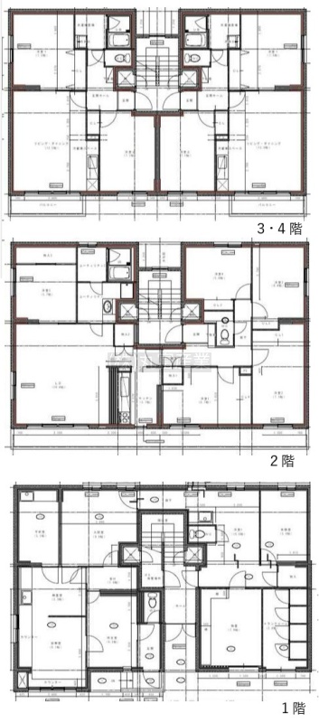
ここに注目!【札幌市手稲区】店舗付き、ペット相談可!一棟アパート「アルカディア」のご紹介です。 JR北海道バス「新発寒5-2」停まで徒歩2分!通勤やお出かけに便利な好立地が魅力です。 周辺には「ホクレンショップ」や「業務スーパー」が徒歩3~4分、コンビニも徒歩6分圏内にあり、毎日のお買い物もスムーズ。 店舗スペースと住居が一体となった、多機能なRC造アパートです。全6戸(3,4階2LDK、2階オーナーズルーム5LDK、1階店舗、事務所)のゆとりある間取りで、大切なペットとの暮らしも相談可能。駐車場は8台分確保されております。 ★現在オーナー様が1階で動物病院開業中、2階オーナーズルームに居住中です。売却後1階、2階は空室となります。
| 価格 |
6,850万円
利回り9.33%
|
|---|---|
| 住所 | 北海道札幌市手稲区新発寒五条2丁目2-32 |
| 交通 | JR北海道バス 「新発寒5-2」停(徒歩2分) |
| 築年月 | 築28年(1997年6月) |
| 構造 | 鉄筋コンクリート(RC)造 |
| 面積 | 建物:528.93m² (160坪)/ 土地:330.96m² (100.11坪)(公簿) |
| 現況 | 総戸数6戸 |
販売状況、見学、詳細を知りたい方はこちら!
お電話の際は「連合隊の物件」とお伝えください。
情報掲載期限:あと27日(更新日 2025/12/10)
- 物件写真・概要
- 周辺地図
-
販売状況、見学、詳細を知りたい方はこちら!
おすすめポイント
- 土地100坪超
交通
- JR北海道バス 「新発寒5-2」停徒歩2分
物件概要
建物の階建 地上4階建 間取り 2LDK×4戸、5LDK×1戸、その他×1戸 駐車場 駐車場台数:8台接道状況 一方 - 南東側幅8.00mの公道に16.20m接道
都市計画区域 市街化区域 用途地域 - 第1種住居地域(建ぺい率:60% / 容積率:200%)
私道負担 地目/地勢 地勢:平坦 国土法届出 土地権利 所有権 引渡し 相談 取引態様 仲介 物件No 4619T 仲介手数料概算 232万6,500円(金額は概算です。正確な金額は不動産会社へお問合せ下さい) 設備・特徴 - バス/トイレ別
- ペット相談可
備考 主な周辺施設色がついているアイコンをクリックすると、本物件までの道順を見ることができます。
-
ホームページはこちら
北海道知事 石狩(12) 第3306号
(株)丸富産業
※連合隊は物件情報の精度向上に努めています:「物件情報に誤りがある」「成約済みである」などお気付きの点がございましたらこちらよりご連絡ください。
写真枚数:3枚







白石区でお部屋探しといえば白石区地域密着46年の丸富産業にお任せください。
白石区で地域密着して46年になります。他の業者で取り扱っていないような掘り出し物件も多数ございます。札幌市内全物件ご案内できますが特に白石区エリアが得意な地域です。お部屋探しは丸富産業にお任せ下さい。