佐々木ビル
ここに注目!新琴似通りに面した路面店!駐車場2台付き!ロードヒーティングも入ってます!以前は美容室として利用してました。2026年1月内装リフォーム済み!南東向きで日当たり良好!「新琴似」駅までは徒歩11分です!店舗や事務所にお勧め!
| 賃料・費用 |
10万円
(+管理費等 -円)
坪単価:約7,850円/坪
敷18万1,820円礼なし仲10万円
保証金:なし/敷引・償却金:なし
|
|---|---|
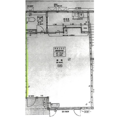
| 専有面積 | 42.12m² (12.74坪) |
| 住所 | 北海道札幌市北区新琴似九条7-8-19 |
| 交通 | 新琴似駅(徒歩12分)|麻生駅(徒歩19分)道順を見る |
| 階/階建 | 路面 / 2階建 |
| 築年月 | 築18年(2007年6月) |
| 駐車場 |
あり 駐車可能台数:2台
|
【WEB面談可】
空室確認、見学、詳細を知りたい方はこちら!
お電話の際は「連合隊の物件」とお伝えください。
情報掲載期限:あと9日(更新日 2026/2/2)
- 物件写真・概要
- 周辺地図
-
【WEB面談可】
空室確認、見学、詳細を知りたい方はこちら!おすすめポイント
- 即入居可
- 駐車2台以上可
- リフォーム済み
- エアコン付
交通色がついているアイコンをクリックすると、本物件までの道順を見ることができます。
物件概要
所在階/建物の階建 1階 / 地上2階建 主要採光面 南東 構造 木造 間取り ワンルーム 契約期間 2年間 更新料/更新手数料 なし 権利金 なし 住宅保険 接道状況 角地 用途地域 - 準住居地域
引渡し 即時 管理人 無 取引態様 仲介 物件No 修繕履歴 - 2026年1月頃に部分的にリフォームしています。施工内容:クロス、床タイル張替
設備・特徴 - 給排水設備
- エアコン付
- 路面店
備考 飲食店は不可となります。 主な周辺施設色がついているアイコンをクリックすると、本物件までの道順を見ることができます。
-
※連合隊は物件情報の精度向上に努めています:「物件情報に誤りがある」「成約済みである」などお気付きの点がございましたらこちらよりご連絡ください。
写真枚数:6枚
札幌市内、札幌近郊の不動産の購入、売却は星ホームにお任せください!親切、丁寧に誠心誠意ご対応させていただきます。
お客様のご希望に沿えるよう、経験豊富なスタッフがご対応致します。購入、売却の手続きや必要なもの、諸費用なども事前にご説明し、明確にすることで安心してお取引していただけます。