コルテナⅡ
ここに注目!大型商業施設に空きが出ました。近隣にはロピアさんなども出店し、人の流れも盛んになりつつあるエリアです。ご内覧など、お気軽にお申し付けくださいませ。 ⭐️ネット非公開物件やレア物件も多数ご紹介させていただきます。ぜひテナント札幌にお任せください!!⭐️ ⭐️弊社にてご成約いただきました企業様の約6割が非公開物件でご契約いただいております! より良い「物件力」で全力でサポートさせて頂きます!⭐️ ⭐️弊社HPに非公開物件を多数掲載しております!⭐️
この物件の契約期間は 5年間です。
定期借家物件は、賃貸借契約期間満了後、原則として契約の更新ができない物件です。再契約の可否については不動産会社にお問合せください。
| 賃料・費用 |
168万6,960円
(+管理費等 37万4,880円)
坪単価:約9,900円/坪
敷920万1,600円仲168万6,960円
|
|---|---|
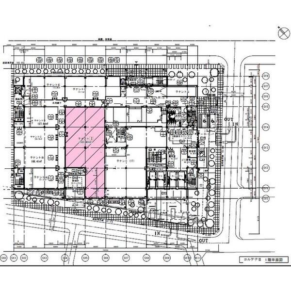
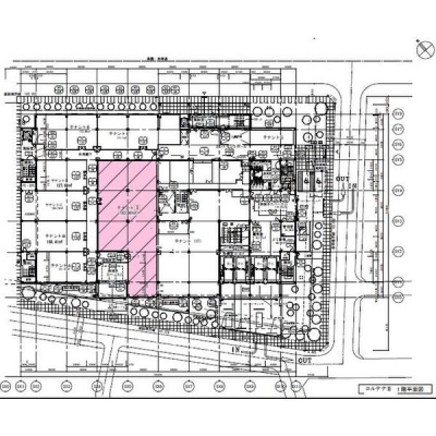
| 専有面積 | 563.31m² (170.4坪) |
| 住所 | 北海道札幌市西区琴似四条2丁目1-2 |
| 交通 | 琴似駅(徒歩8分)|琴似駅(徒歩11分)|発寒中央駅(徒歩16分)道順を見る |
| 階/階建 | 1階 |
| 築年月 | |
| 駐車場 |
あり
|
【WEB面談可】
空室確認、見学、詳細を知りたい方はこちら!
お電話の際は「連合隊の物件」とお伝えください。
情報掲載期限:あと16日(更新日 2026/1/28)
- 物件写真・概要
- 周辺地図
-
【WEB面談可】
空室確認、見学、詳細を知りたい方はこちら!おすすめポイント
- 即入居可
- 複数路線利用可
- 幹線道路沿い
- 駐車場あり
- スケルトン
- デザイナーズ
交通色がついているアイコンをクリックすると、本物件までの道順を見ることができます。
物件概要
所在階/建物の階建 1階(1T-I) 主要採光面 構造 鉄骨造 間取り 契約期間 定期借家(5年間) 権利金 住宅保険 出店推奨業種 出店不可業種 引渡し 即時 管理人 取引態様 仲介 物件No 設備・特徴 - 複数路線利用可
- 幹線道路沿い
- エレベーター
- デザイナーズ
- スケルトン
備考 デザイナーズ物件 琴似エリア おすすめ業種: 事務所 オフィス 物販店 クリニック その他サービス系店舗など その他 ☆賃料等の諸条件ご相談くださいませ。 札幌市内すべてのテナントをご紹介致します! ⭐️弊社HPに非公開物件多数掲載しております!⭐️ 他にも非公開物件を多数ご用意しております! 主な周辺施設色がついているアイコンをクリックすると、本物件までの道順を見ることができます。
-
※連合隊は物件情報の精度向上に努めています:「物件情報に誤りがある」「成約済みである」などお気付きの点がございましたらこちらよりご連絡ください。
写真枚数:5枚
札幌エリアのテナントはすべてご紹介可能です!レア物件から非公開物件まで御社に最適なテナントを全力でご紹介いたします!