植苗倉庫
ここに注目!大型倉庫に空きが出ました。本条件は432坪でございますが、現在3区画空いておりますので357坪、862坪、1,220坪での賃貸も可能でございます。車両合計最大積載20tまで建物内に直接乗り入れもできます。1.5tフォークリフトもご利用いただけます。日高自動車道「沼ノ端西IC」から約5.8キロ、敷地内も広いのでトラックヤードも確保しております。ご内覧など、どうぞお気軽にお申し付けくださいませ。 ※非公開テナントや空き予定物件ならSKにお任せください!
| 賃料・費用 |
128万4,143円
(+管理費等 -円)
坪単価:約2,971円/坪
仲141万2,557円
|
|---|---|
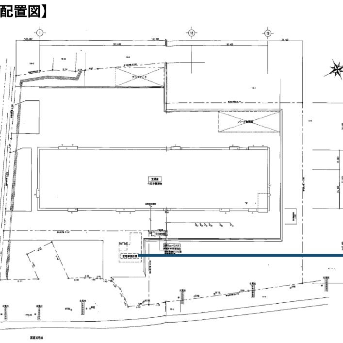
| 専有面積 | 1429.33m² (432.37坪) |
| 住所 | 北海道苫小牧市植苗169-5 |
| 交通 | |
| 階/階建 | 1階 |
| 築年月 | 築17年(2008年11月) |
| 駐車場 |
【WEB面談可】
空室確認、見学、詳細を知りたい方はこちら!
お電話の際は「連合隊の物件」とお伝えください。
情報掲載期限:あと29日(更新日 2026/2/27)
- 物件写真・概要
- 周辺地図
-
【WEB面談可】
空室確認、見学、詳細を知りたい方はこちら!おすすめポイント
- 即入居可
物件概要
所在階/建物の階建 1階 主要採光面 構造 間取り 契約期間 権利金 住宅保険 出店推奨業種 出店不可業種 用途地域 - 準工業地域
引渡し 即時 管理人 取引態様 仲介 物件No 607045 設備・特徴 備考 主な周辺施設色がついているアイコンをクリックすると、本物件までの道順を見ることができます。
-
※連合隊は物件情報の精度向上に努めています:「物件情報に誤りがある」「成約済みである」などお気付きの点がございましたらこちらよりご連絡ください。
写真枚数:4枚
札幌エリアのテナントはすべてご紹介可能です!レア物件から非公開物件まで御社に最適なテナントを全力でご紹介いたします!【すべてはお客様の事業成功のために】