ここに注目!2026年2月竣工のオフィス区画で募集をしております。地下鉄南北線・東西線・東豊線「大通駅」から徒歩7分の立地にございます。新築ビルで快適にお仕事はいかがでしょうか。フロア分割もご相談ください。お問い合わせお待ちしております。⭐️ネット非公開物件やレア物件も多数ご紹介させていただきます。ぜひテナント札幌にお任せください!!⭐️ ⭐️弊社にてご成約いただきました企業様の6割が非公開物件です! より良い「物件力」で全力でサポートさせて頂きます!⭐️ ⭐️弊社HPに非公開物件を多数掲載しております!⭐️
この物件の契約期間は 5年間です。
定期借家物件は、賃貸借契約期間満了後、原則として契約の更新ができない物件です。再契約の可否については不動産会社にお問合せください。
| 賃料・費用 |
469万6,461円
(+管理費等 なし)
坪単価:約2.3万円/坪
敷4,269万5,100円仲469万6,461円
|
|---|---|
| 専有面積 | 672.1m² (203.31坪) |
| 住所 | 北海道札幌市中央区北一条西4丁目 |
| 交通 | 大通駅(徒歩7分)道順を見る |
| 階/階建 | 8階 / 8階建(地下1階) |
| 築年月 | 建築中(2026年2月完成予定) |
| 駐車場 |
あり 駐車可能台数:22台
地下機械式ハイルーフ22台完備。 |
空室確認、見学、詳細を知りたい方はこちら!
お電話の際は「連合隊の物件」とお伝えください。
情報掲載期限:あと29日(更新日 2026/1/28)
- 物件写真・概要
- 周辺地図
-
空室確認、見学、詳細を知りたい方はこちら!
おすすめポイント
- 複数路線利用可
- 幹線道路沿い
- 駐車2台以上可
- デザイナーズ
- 男女別トイレ
- エアコン付
- OAフロア
- 出店するなら…この業種がおすすめ!
- 飲食全般(重飲食含む)

- 喫茶・カフェ(軽飲食)

- バー・クラブ・スナック

- 小売・物販

- 美容・健康・介護

- 医療

- 教育・スクール

- 事務所

- アミューズメント

交通色がついているアイコンをクリックすると、本物件までの道順を見ることができます。
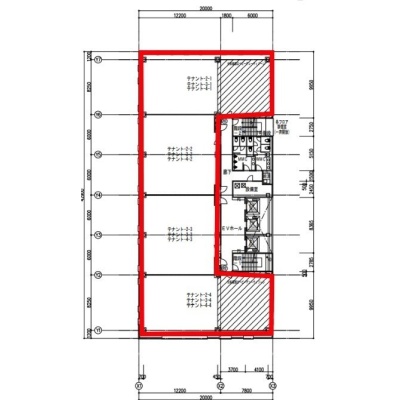
物件概要
所在階/建物の階建 8階(ワンフロア) / 地上8階 地下1階建 主要採光面 構造 鉄骨造 間取り 契約期間 定期借家(5年間) 権利金 住宅保険 出店推奨業種 事務所、その他 出店不可業種 引渡し 2026年2月下旬 管理人 取引態様 仲介 物件No 19591 設備・特徴 - 前面ガラス張り
- 男女別トイレ
- エアコン付
- OAフロア
- デザイナーズ
- エレベーター
- 幹線道路沿い
- 複数路線利用可
備考 デザイナーズ物件 駅近物件 大型物件 ワンフロア物件 前面ガラス張り 大通エリア おすすめ業種: オフィス 事務所 その他 ☆賃料等の諸条件ご相談くださいませ。 札幌市内すべてのテナントをご紹介致します! 他にも非公開物件を多数ご用意しております! 主な周辺施設色がついているアイコンをクリックすると、本物件までの道順を見ることができます。
-
ホームページはこちら
北海道知事 石狩(1) 第9724号
(株)テナント札幌
※連合隊は物件情報の精度向上に努めています:「物件情報に誤りがある」「成約済みである」などお気付きの点がございましたらこちらよりご連絡ください。
写真枚数:2枚
札幌エリアのテナントはすべてご紹介可能です!レア物件から非公開物件まで御社に最適なテナントを全力でご紹介いたします!