コート南円山 1階
ここに注目!⭐️ネット非公開物件やレア物件も多数ご紹介させていただきます。ぜひテナント札幌にお任せください!!⭐️ ⭐️弊社にてご成約いただきました企業様の約6割が非公開物件でご契約いただいております! より良い「物件力」で全力でサポートさせて頂きます!⭐️ ⭐️弊社HPに非公開物件を多数掲載しております!⭐️
| 賃料・費用 |
27万5,000円
(+管理費等 -円)
坪単価:約9,925円/坪
敷75万円仲27万5,000円
|
|---|---|
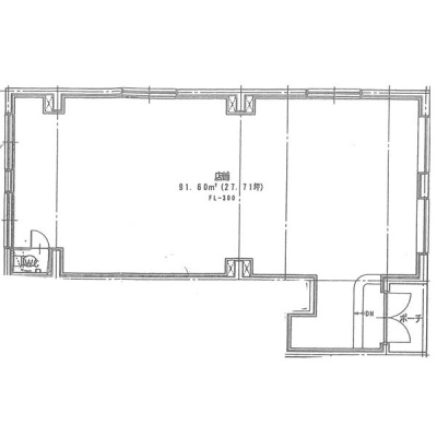
| 専有面積 | 91.61m² (27.71坪) |
| 住所 | 北海道札幌市中央区南五条西25丁目2番5号 |
| 交通 | 円山公園駅(徒歩9分)|西線6条駅(徒歩16分)|西18丁目駅(徒歩18分)道順を見る |
| 階/階建 | 路面 / 4階建 |
| 築年月 | 築24年(2001年8月) |
| 駐車場 |
あり (無料) 駐車可能台数:3台
|
【WEB面談可】
空室確認、見学、詳細を知りたい方はこちら!
お電話の際は「連合隊の物件」とお伝えください。
情報掲載期限:あと21日(更新日 2026/2/27)
- 物件写真・概要
- 周辺地図
-
【WEB面談可】
空室確認、見学、詳細を知りたい方はこちら!おすすめポイント
- 即入居可
- 路面店
- 複数路線利用可
- 幹線道路沿い
- 駐車2台以上可
交通色がついているアイコンをクリックすると、本物件までの道順を見ることができます。
物件概要
所在階/建物の階建 1階 / 地上4階建 主要採光面 構造 鉄筋コンクリート(RC)造 間取り 契約期間 権利金 住宅保険 出店推奨業種 出店不可業種 引渡し 即時 管理人 取引態様 仲介 物件No 85321 設備・特徴 - 路面店
- 幹線道路沿い
- 複数路線利用可
備考 1階路面店 おすすめ業種: 飲食店 軽飲食 オフィス 理美容 クリニック 倉庫 その他サービス系店舗など ☆賃料等の諸条件ご相談くださいませ。 札幌市内すべてのテナントをご紹介致します! ⭐️弊社HPに非公開物件多数掲載しております!⭐️ 主な周辺施設色がついているアイコンをクリックすると、本物件までの道順を見ることができます。
-
※連合隊は物件情報の精度向上に努めています:「物件情報に誤りがある」「成約済みである」などお気付きの点がございましたらこちらよりご連絡ください。
写真枚数:3枚
札幌エリアのテナントはすべてご紹介可能です!レア物件から非公開物件まで御社に最適なテナントを全力でご紹介いたします!【すべてはお客様の事業成功のために】