清田テナント事務所
ここに注目!清田エリアの倉庫付き事務所でございます。事務所部分90.72㎡(27.44坪)、倉庫・車庫+開放車庫併せて218.70㎡(66.15坪)となります。駐車台数等ご相談くださいませ。 ⭐️ネット非公開物件やレア物件も多数ご紹介させていただきます。ぜひテナント札幌にお任せください!!⭐️ ⭐️弊社にてご成約いただきました企業様の約6割が非公開物件でご契約いただいております! より良い「物件力」で全力でサポートさせて頂きます!⭐️ ⭐️弊社HPに非公開物件を多数掲載しております!⭐️
| 賃料・費用 |
44万円
(+管理費等 -円)
坪単価:約4,700円/坪
敷80万円仲44万円
|
|---|---|
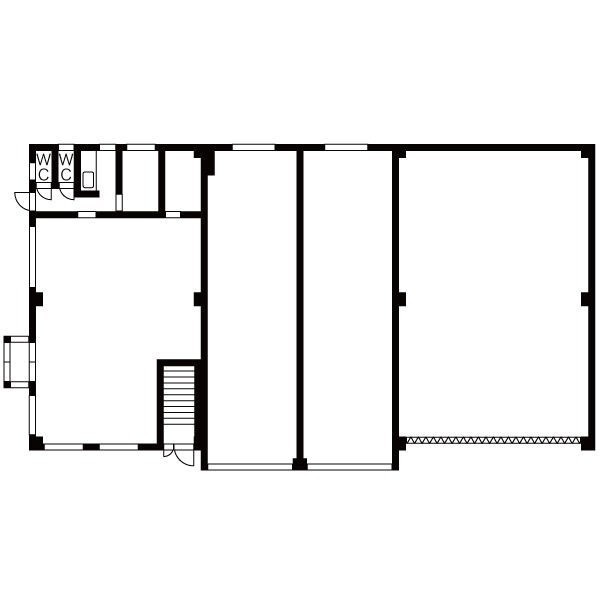
| 専有面積 | 309.49m² (93.62坪) |
| 住所 | 北海道札幌市清田区清田二条3丁目3-1 |
| 交通 | |
| 階/階建 | 1階 / 2階建 |
| 築年月 | |
| 駐車場 |
あり (無料) 駐車可能台数:4台
|
【WEB面談可】
空室確認、見学、詳細を知りたい方はこちら!
お電話の際は「連合隊の物件」とお伝えください。
情報掲載期限:あと8日(更新日 2026/3/26)
- 物件写真・概要
- 周辺地図
-
【WEB面談可】
空室確認、見学、詳細を知りたい方はこちら!おすすめポイント
- 即入居可
- 駐車2台以上可
物件概要
所在階/建物の階建 1階 / 地上2階建 主要採光面 構造 鉄骨造 間取り 契約期間 権利金 住宅保険 出店推奨業種 出店不可業種 引渡し 即時 管理人 取引態様 仲介 物件No 559910 設備・特徴 備考 主な周辺施設色がついているアイコンをクリックすると、本物件までの道順を見ることができます。
-
※連合隊は物件情報の精度向上に努めています:「物件情報に誤りがある」「成約済みである」などお気付きの点がございましたらこちらよりご連絡ください。
写真枚数:9枚
札幌エリアのテナントはすべてご紹介可能です!レア物件から非公開物件まで御社に最適なテナントを全力でご紹介いたします!【すべてはお客様の事業成功のために】