N12イーストメディカルビル
ここに注目!1階には大手ドラッグストア様が御入店されております。大型駐車場も完備しておりますので、ご来店のお客様には便利なテナントです。御内覧など随時承っておりますので、お気軽にお申し付けくださいませ。 ⭐️ネット非公開物件やレア物件も多数ご紹介させていただきます。ぜひテナント札幌にお任せください!!⭐️ ⭐️弊社にてご成約いただきました企業様の約6割が非公開物件でご契約いただいております! より良い「物件力」で全力でサポートさせて頂きます!⭐️ ⭐️弊社HPに非公開物件を多数掲載しております!⭐️
| 賃料・費用 |
63万4,766円
(+管理費等 -円)
坪単価:約1.2万円/坪
敷346万2,360円仲63万4,766円
|
|---|---|
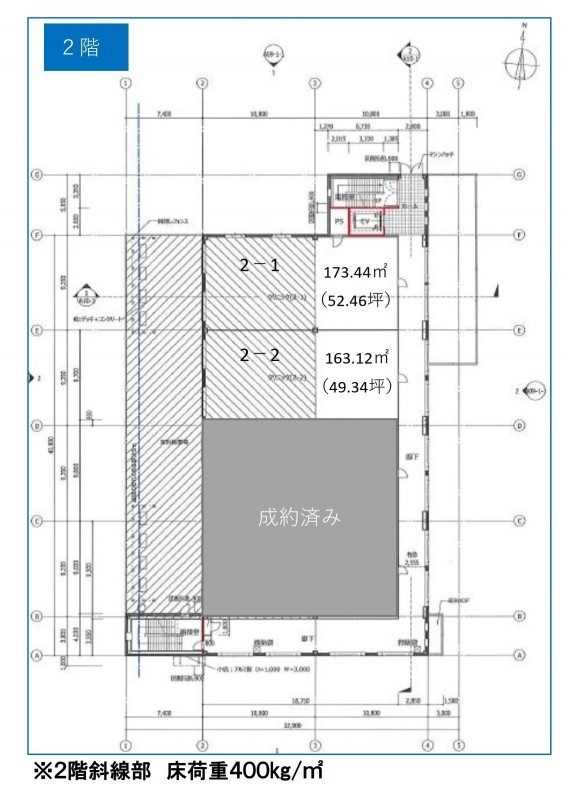
| 専有面積 | 173.43m² (52.46坪) |
| 住所 | 北海道札幌市東区北十二条東四丁目2-1 |
| 交通 | 北12条駅(徒歩12分)|東区役所前駅(徒歩8分)|北13条東駅(徒歩6分)道順を見る |
| 階/階建 | 2階 / 3階建 |
| 築年月 | 築4年(2021年12月) |
| 駐車場 |
あり
大型共用駐車場完備 |
【WEB面談可】
空室確認、見学、詳細を知りたい方はこちら!
お電話の際は「連合隊の物件」とお伝えください。
情報掲載期限:あと15日(更新日 2026/1/29)
- 物件写真・概要
- 周辺地図
-
【WEB面談可】
空室確認、見学、詳細を知りたい方はこちら!おすすめポイント
- 即入居可
- 複数路線利用可
- 駐車場あり
- デザイナーズ
- 袖看板あり
交通色がついているアイコンをクリックすると、本物件までの道順を見ることができます。
物件概要
所在階/建物の階建 2階 / 地上3階建 主要採光面 構造 鉄骨造 間取り 契約期間 権利金 住宅保険 出店推奨業種 出店不可業種 引渡し 即時 管理人 取引態様 仲介 物件No Y506135 設備・特徴 - 袖看板あり
- デザイナーズ
- 複数路線利用可
備考 デザイナーズ物件 大型共用駐車場 おすすめ業種: 福祉系 クリニック その他 ☆賃料等の諸条件ご相談くださいませ。 札幌市内すべてのテナントをご紹介致します! 他にも非公開物件を多数ご用意しております! 主な周辺施設色がついているアイコンをクリックすると、本物件までの道順を見ることができます。
-
※連合隊は物件情報の精度向上に努めています:「物件情報に誤りがある」「成約済みである」などお気付きの点がございましたらこちらよりご連絡ください。
写真枚数:29枚
札幌エリアのテナントはすべてご紹介可能です!レア物件から非公開物件まで御社に最適なテナントを全力でご紹介いたします!