白央ビル
ここに注目!環状通りに面する3階58坪テナントでございます。事務所限定での募集となります。エレベーターはございませんが昇降機があります。 ⭐️ネット非公開物件やレア物件も多数ご紹介させていただきます。ぜひテナント札幌にお任せください!!⭐️ ⭐️弊社にてご成約いただきました企業様の約6割が非公開物件でご契約いただいております! より良い「物件力」で全力でサポートさせて頂きます!⭐️ ⭐️弊社HPに非公開物件を多数掲載しております!⭐️
| 賃料・費用 |
44万6,600円
(+管理費等 -円)
坪単価:約7,700円/坪
敷121万8,000円仲44万6,600円
|
|---|---|
| 専有面積 | 191.74m² (58坪) |
| 住所 | 北海道札幌市白石区中央一条7丁目10-23 |
| 交通 | 白石駅(徒歩8分)|白石駅(徒歩18分)|東札幌駅(徒歩22分)道順を見る |
| 階/階建 | 3階 / 3階建 |
| 築年月 | |
| 駐車場 |
あり 駐車可能台数:5台
|
【WEB面談可】
空室確認、見学、詳細を知りたい方はこちら!
お電話の際は「連合隊の物件」とお伝えください。
情報掲載期限:あと11日(更新日 2026/3/4)
- 物件写真・概要
- 周辺地図
-
【WEB面談可】
空室確認、見学、詳細を知りたい方はこちら!おすすめポイント
- 即入居可
- 複数路線利用可
- 幹線道路沿い
- 駐車2台以上可
- 出店するなら…この業種がおすすめ!
- 飲食全般(重飲食含む)

- 喫茶・カフェ(軽飲食)

- バー・クラブ・スナック

- 小売・物販

- 美容・健康・介護

- 医療

- 教育・スクール

- 事務所

- アミューズメント

交通色がついているアイコンをクリックすると、本物件までの道順を見ることができます。
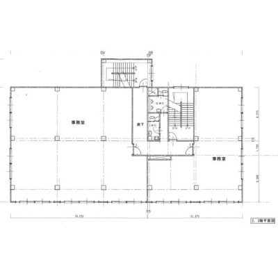
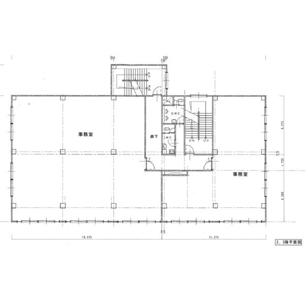
物件概要
所在階/建物の階建 3階 / 地上3階建 主要採光面 構造 間取り 契約期間 権利金 住宅保険 出店推奨業種 事務所 出店不可業種 引渡し 即時 管理人 取引態様 仲介 物件No Y394001 設備・特徴 - 幹線道路沿い
- 複数路線利用可
備考 大型物件 おすすめ業種: 事務所 オフィス *賃料等課税対象となる金額には別途消費税が加算されます。 ☆賃料等の諸条件ご相談くださいませ。 札幌市内すべてのテナントをご紹介致します! 他にも非公開物件を多数ご用意しております! 主な周辺施設色がついているアイコンをクリックすると、本物件までの道順を見ることができます。
-
※連合隊は物件情報の精度向上に努めています:「物件情報に誤りがある」「成約済みである」などお気付きの点がございましたらこちらよりご連絡ください。
写真枚数:16枚
札幌エリアのテナントはすべてご紹介可能です!レア物件から非公開物件まで御社に最適なテナントを全力でご紹介いたします!【すべてはお客様の事業成功のために】