ヒルズストリートビル
ここに注目!JR岩見沢駅から徒歩8分、ビジネスの拠点に最適な「ヒルズストリートビル」5階の貸店舗をご紹介します。複数路線が利用できるため、お客様にとってもスタッフの方にとってもアクセスしやすいのが嬉しいポイントです。徒歩圏内には「であえーる岩見沢」やコンビニがあり、日々の利便性も抜群ですよ。 約19.38㎡の空間は、喫茶・カフェ、バー・クラブ、小売・物販など、多様な業種に対応可能です。エアコンやエレベーターはもちろん、ビジネスに役立つ袖看板も完備しており、スムーズなスタートを応援します。初期費用を抑えられる礼金0円も魅力。この場所で、あなたの新しい夢を形にしてみませんか?
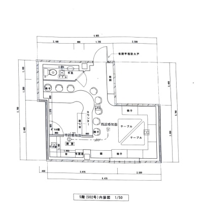
この物件は バー クラブ・ラウンジ スナック・パブ の居抜き物件です。
現状の設備が残されたまま取引されるため、初期費用を抑え速やかに事業を開始できるメリットがあります。
この物件は、仲介手数料がかかりません。
この物件の貸主は、情報を掲載している不動産会社です。仲介物件ではないため、仲介手数料は発生しません。
| 賃料・費用 |
6万5,000円
(+管理費等 -円)
坪単価:約1.1万円/坪
敷11万8,182円礼なし仲なし
保証金:なし/敷引・償却金:なし
|
|---|---|
| 専有面積 | 19.38m² (5.86坪) |
| 住所 | 北海道岩見沢市三条西1丁目5-4 |
| 交通 | 岩見沢駅(徒歩8分)道順を見る |
| 階/階建 | 5階 / 5階建(地下5階) |
| 築年月 | 築27年(1998年10月) |
| 駐車場 |
なし
|
空室確認、見学、詳細を知りたい方はこちら!
お電話の際は「連合隊の物件」とお伝えください。
新着 情報掲載期限:あと30日(更新日 2026/1/23)
- 物件写真・概要
- 周辺地図
-
空室確認、見学、詳細を知りたい方はこちら!
おすすめポイント
- 複数路線利用可
- 袖看板あり
- 出店するなら…この業種がおすすめ!
- 飲食全般(重飲食含む)

- 喫茶・カフェ(軽飲食)

- バー・クラブ・スナック

- 小売・物販

- 美容・健康・介護

- 医療

- 教育・スクール

- 事務所

- アミューズメント

交通色がついているアイコンをクリックすると、本物件までの道順を見ることができます。
物件概要
所在階/建物の階建 5階(502) / 地上5階 地下5階建 主要採光面 西 構造 鉄骨造 間取り 契約期間 更新料/更新手数料 なし 権利金 なし 住宅保険 出店推奨業種 喫茶・カフェ(軽飲食)、バー・クラブ・スナック、小売・物販 出店不可業種 居抜き情報 [バー、クラブ・ラウンジ、スナック・パブ] の居抜き引渡し 管理人 巡回 取引態様 貸主 物件No 設備・特徴 - 複数路線利用可
- エレベーター
- 照明器具付
- ガス設備
- 給排水設備
- エアコン付
- ビルトインエアコン
- 袖看板あり
備考 主な周辺施設色がついているアイコンをクリックすると、本物件までの道順を見ることができます。
-
※連合隊は物件情報の精度向上に努めています:「物件情報に誤りがある」「成約済みである」などお気付きの点がございましたらこちらよりご連絡ください。
写真枚数:2枚