ヒルズストリートビル
ここに注目!JR岩見沢駅から徒歩8分、「ヒルズストリートビル」3階に、あなたの新しいビジネスチャンスが待っています!月々65,000円(税込)で、広々19.38m²の空間をご利用いただけます。 特に、喫茶・カフェ(軽飲食)、バー・クラブ・スナック、小売・物販のオーナー様におすすめです。袖看板の設置が可能で、エレベーター完備、快適なエアコンや照明器具も備わっており、スムーズな開業をサポートします。深夜営業のご相談も承りますので、幅広いビジネススタイルに対応できますね。 JR函館本線とJR室蘭本線の複数路線が利用でき、アクセスも良好。ショッピングセンター「であえーる岩見沢」やコンビニが徒歩圏内にあり、集客にも期待が持てます。礼金0円なのも嬉しいポイント。 鉄骨造のしっかりとした建物で、安心してお店を構えられます。この機会に、ぜひ一度現地で可能性を感じてみませんか?お問い合わせをお待ちしております。
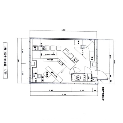
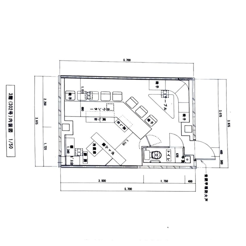
この物件は バー クラブ・ラウンジ スナック・パブ の居抜き物件です。
現状の設備が残されたまま取引されるため、初期費用を抑え速やかに事業を開始できるメリットがあります。
この物件は、仲介手数料がかかりません。
この物件の貸主は、情報を掲載している不動産会社です。仲介物件ではないため、仲介手数料は発生しません。
| 賃料・費用 |
6万5,000円
(+管理費等 -円)
坪単価:約1.1万円/坪
敷11万8,182円礼なし仲なし
保証金:なし/敷引・償却金:なし
|
|---|---|
| 専有面積 | 19.38m² (5.86坪) |
| 住所 | 北海道岩見沢市三条西1丁目5-4 |
| 交通 | 岩見沢駅(徒歩8分)道順を見る |
| 階/階建 | 3階 / 5階建(地下3階) |
| 築年月 | 築27年(1998年10月) |
| 駐車場 |
なし
|
空室確認、見学、詳細を知りたい方はこちら!
お電話の際は「連合隊の物件」とお伝えください。
新着 情報掲載期限:あと30日(更新日 2026/1/23)
- 物件写真・概要
- 周辺地図
-
空室確認、見学、詳細を知りたい方はこちら!
おすすめポイント
- 複数路線利用可
- 袖看板あり
- 出店するなら…この業種がおすすめ!
- 飲食全般(重飲食含む)

- 喫茶・カフェ(軽飲食)

- バー・クラブ・スナック

- 小売・物販

- 美容・健康・介護

- 医療

- 教育・スクール

- 事務所

- アミューズメント

交通色がついているアイコンをクリックすると、本物件までの道順を見ることができます。
物件概要
所在階/建物の階建 3階(302) / 地上5階 地下3階建 主要採光面 西 構造 鉄骨造 間取り 契約期間 更新料/更新手数料 なし 権利金 なし 住宅保険 出店推奨業種 喫茶・カフェ(軽飲食)、バー・クラブ・スナック、小売・物販 出店不可業種 居抜き情報 [バー、クラブ・ラウンジ、スナック・パブ] の居抜き引渡し 管理人 巡回 取引態様 貸主 物件No 設備・特徴 - 複数路線利用可
- エレベーター
- 照明器具付
- ガス設備
- 給排水設備
- エアコン付
- ビルトインエアコン
- 個別空調
- 深夜営業相談可
- 袖看板あり
備考 主な周辺施設色がついているアイコンをクリックすると、本物件までの道順を見ることができます。
-
※連合隊は物件情報の精度向上に努めています:「物件情報に誤りがある」「成約済みである」などお気付きの点がございましたらこちらよりご連絡ください。
写真枚数:2枚