ビレッジハウス恵み野2号棟
| 賃料・費用 |
4万4,200円(+管理費等 なし)
敷なし礼なし仲4万8,620円
保証金:なし
|
|---|---|
| 間取・専有 |
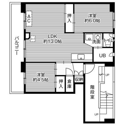
2LDK(55.99m²)
|
| 住所 | 北海道恵庭市恵み野南1丁目1-4 |
| 交通 | 恵み野駅(徒歩20分) |
| 築年月 | 築43年(1982年11月) |
| 駐車場 |
なし
|
【WEB面談可】
空室確認、見学、詳細を知りたい方はこちら!
お電話の際は「連合隊の物件」とお伝えください。
情報掲載期限:あと29日(更新日 2026/1/26)
- 物件写真・概要
- 周辺地図
-
【WEB面談可】
空室確認、見学、詳細を知りたい方はこちら!おすすめポイント
- バス/トイレ別
- オートロック
- 2階以上
- 都市ガス
- 室内洗濯機置場
- 駐車場あり
- エアコン付
- 独立洗面台
- 追い焚き風呂
- ペット相談可
- デザイナーズ
- 敷・礼・保0円
交通色がついているアイコンをクリックすると、本物件までの道順を見ることができます。
物件概要
所在階/建物の階建 5階(0505) / 地上5階建 総戸数 80戸 主要採光面 南 構造 鉄筋コンクリート(RC)造 契約期間 お問合せください 住宅保険 1万円 その他費用 その他 - 保険料:1万円
入居可能時期 即時 管理人 取引態様 仲介 物件No 85370164 設備・特徴 - バス/トイレ別
- 室内洗濯機置場
- 追い焚き風呂
- 独立洗面台
- 2人入居相談可(ルームシェア含む)
- その他インターネット
- シニア相談可
- LPガス
備考 保証人・保証会社不要(審査によって連帯保証人が必要の場合あり) 短期解約違約金あり。1年未満の解約で賃料3ヶ月分。2年未満の解約で賃料2ヶ月分。 鍵交換代は貸主負担。短期解約違約金あり 1年未満解約は賃料等の3ヵ月分、2年未満は2ヵ月分 法人契約の場 学区色がついているアイコンをクリックすると、本物件までの道順を見ることができます。
-
ホームページはこちら
北海道知事 胆振(14) 第330号
アパマンショップ苫小牧店 (株)イースト住宅情報 【WEB面談可】
※連合隊は物件情報の精度向上に努めています:「物件情報に誤りがある」「成約済みである」などお気付きの点がございましたらこちらよりご連絡ください。
写真枚数:16枚
外観
間取図
内観
内観
内観
内観
その他
その他
その他
その他
その他
その他
その他
その他
その他
その他
当社は経営理念にある【感謝】の心を常に忘れず、地域の方々から「信用」「信頼」されることを目指します。そして、社員一同が知識、経験をさらに伸ばし、皆様の豊かな暮らしの発展に貢献したいと思います。
地域密着型の不動産会社として、賃貸仲介から法人社宅のご紹介まで幅広く対応しております。 苫小牧市・室蘭市・登別市など、胆振エリアの賃貸情報ならぜひ当店へご相談ください。 豊富な物件情報と経験豊富なスタッフが、安心のお部屋探しをサポートします。