GLACIA N32
ここに注目!\最新のIoT設備が導入された物件となっております/ ①外出先でも来訪者の対応が可能! →電話感覚で来訪者対応ができます。 ②鍵の開け閉めもスマートフォンで可能です。 →Suica・QUICPay等で開け閉め可能。 鍵の閉め忘れも心配ありません。 ③照明やエアコンのオンオフ操作ができます。 →旅行中も照明の入り切り可能で防犯対策できます。 ④お風呂のお湯貼りも出先から! →寒い日に家に帰ってすぐにお風呂に入れます。 ★経済的な都市ガス物件 ★お風呂は広々一坪バスでゆったり(追炊き付き) ★ALは顔認証システム採用で、顔パスで出入り可能です! ★駐車場も1台完備! ★小型犬一匹可の都市ガス物件!
| 賃料・費用 |
9万3,000円(+管理費等 6,000円)
敷9万3,000円(1ヶ月)礼なし仲なし
保証金:なし/敷引・償却金:なし
|
|---|---|
| 間取・専有 |
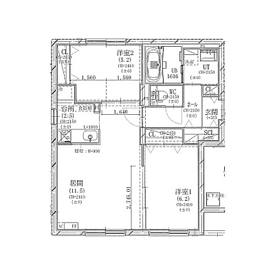
2LDK(58.65m²)└ L11.5帖 洋室6.2帖 洋室5.2帖 K2.5帖
|
| 住所 | 北海道札幌市東区北三十二条東1-7-3 |
| 交通 | 北34条駅(徒歩9分)道順を見る |
| 築年月 | 新築(2025年9月) |
| 駐車場 |
あり (1万4,300円/台) 駐車可能台数:1台
|
空室確認、見学、詳細を知りたい方はこちら!
お電話の際は「連合隊の物件」とお伝えください。
情報掲載期限:あと27日(更新日 2025/12/4)
- 物件写真・概要
- 周辺地図
-
空室確認、見学、詳細を知りたい方はこちら!
おすすめポイント
- バス/トイレ別
- オートロック
- 2階以上
- 都市ガス
- 室内洗濯機置場
- 駐車場あり
- エアコン付
- 独立洗面台
- 追い焚き風呂
- ペット相談可
- デザイナーズ
- 敷金・礼金0円
- 近くて便利!徒歩5分以内にある施設
- 2分
2分- 4分
4分- 3分
3分- 周辺施設を地図で確認
交通色がついているアイコンをクリックすると、本物件までの道順を見ることができます。
物件概要
所在階/建物の階建 1階(102) / 地上4階建 総戸数 8戸 主要採光面 西 構造 鉄筋コンクリート(RC)造 契約期間 2年間 更新料/更新手数料 なし 住宅保険 2万円(2年間) その他費用 毎月の費用 - 24時間管理費:1,100円
- 町内会費:300円
一時金 - 退去時室内清掃料:3万3,000円
- 退去時エアコン分解清掃料:2万2,000円
入居可能時期 即時 管理人 取引態様 代理 物件No 設備・特徴 - 都市ガス
- バス/トイレ別
- 独立洗面台
- 追い焚き風呂
- 浴室1坪以上
- ガスコンロ
- コンロ3口以上
- システムキッチン
- エアコン付
- ガス暖房
- オートロック
- 防犯カメラ
- 宅配BOX
- モニタ付インターホン
- インターネット利用料無料
- BSアンテナ
- 駐輪場
- ロードヒーティング
- 角部屋
- 照明器具付
- シューズインクローゼット
- ペット相談可
- 室内洗濯機置場
備考 学区色がついているアイコンをクリックすると、本物件までの道順を見ることができます。
主な周辺施設色がついているアイコンをクリックすると、本物件までの道順を見ることができます。
-
※連合隊は物件情報の精度向上に努めています:「物件情報に誤りがある」「成約済みである」などお気付きの点がございましたらこちらよりご連絡ください。
写真枚数:22枚
管理会社が直接募集しております!
弊社は賃貸管理をメインに行っている街の管理会社です。 募集物件は全て弊社管理の物件となりますので、ご契約後も安心してお住まいいただけます。 弊社管理の物件以外にもご紹介可能ですので、遠慮なくご相談ください。