テングッド城西Ⅱ
ここに注目!西新駅最寄りの路面店★スケルトン渡しとなります。 内覧ご希望の方はお問い合わせください(^^) 福岡のテナント探しはT'SHにお任せください! 他の物件もご紹介可能です♪ 何なりとご相談ください!
この物件の契約期間は 5年間です。
定期借家物件は、賃貸借契約期間満了後、原則として契約の更新ができない物件です。再契約の可否については不動産会社にお問合せください。
| 賃料・費用 |
9万5,700円
(+管理費等 5,500円)
坪単価:約1.2万円/坪
敷57万4,200円(6ヶ月)礼なし仲9万5,700円
|
|---|---|
| 専有面積 | 26.32m² (7.96坪) |
| 住所 | 福岡県福岡市早良区城西1丁目 2-27 |
| 交通 | 西新駅(徒歩8分)|唐人町駅(徒歩17分)|別府駅(徒歩17分)道順を見る |
| 階/階建 | 路面 / 3階建 |
| 築年月 | 築45年(1980年8月) |
| 駐車場 |
なし
|
【WEB面談可】
空室確認、見学、詳細を知りたい方はこちら!
お電話の際は「連合隊の物件」とお伝えください。
情報掲載期限:あと28日(更新日 2026/5/18)
- 物件写真・概要
- 周辺地図
-
【WEB面談可】
空室確認、見学、詳細を知りたい方はこちら!おすすめポイント
- 路面店
- スケルトン
- 出店するなら…この業種がおすすめ!
- 飲食全般(重飲食含む)

- 喫茶・カフェ(軽飲食)

- バー・クラブ・スナック

- 小売・物販

- 美容・健康・介護

- 医療

- 教育・スクール

- 事務所

- アミューズメント

交通色がついているアイコンをクリックすると、本物件までの道順を見ることができます。
物件概要
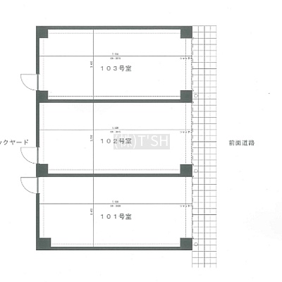
所在階/建物の階建 1階(102) / 地上3階建 主要採光面 構造 鉄筋コンクリート(RC)造 間取り ワンルーム 契約期間 定期借家(5年間) 権利金 住宅保険 お問合せください 出店推奨業種 事務所、その他 出店不可業種 引渡し 相談 管理人 取引態様 仲介 物件No 早O 設備・特徴 - スケルトン
- 路面店
備考 現況優先となります。 主な周辺施設色がついているアイコンをクリックすると、本物件までの道順を見ることができます。
-
※連合隊は物件情報の精度向上に努めています:「物件情報に誤りがある」「成約済みである」などお気付きの点がございましたらこちらよりご連絡ください。
写真枚数:2枚
福岡の物件探しはT’SHにお任せください☆
整骨院院長が立ち上げた不動産会社★賃貸、売買、管理なんでも承っております!テナント探しもお任せください★整骨院関連、その他どのような業種内容でも精一杯お探しさせていただきます!送迎も可能です!土日も案内対応しております!ささいなことでもお気軽にお問い合わせください。