ラ・シック長丘
ここに注目!南区長丘の新築物件☆2025年8月末竣工予定★フリーレント4か月相談ください!内覧可能◎1階路面店です♪飲食店も可能!業種ご相談ください! 福岡のテナント探しはT'SHにお任せください! 内覧ご希望の方はお問い合わせください(^^) 他の物件もご紹介可能です♪ 何なりとご相談ください!
この物件は、入居後4ヶ月分の賃料が無料になります。
契約時の初期費用を抑えることができるメリットがあります。違約金などは不動産会社にお問合せください。
この物件の契約期間は 5年間です。
定期借家物件は、賃貸借契約期間満了後、原則として契約の更新ができない物件です。再契約の可否については不動産会社にお問合せください。
| 賃料・費用 |
27万1,700円
(+管理費等 1万1,000円)
坪単価:約1.3万円/坪
敷24万7,000円礼なし仲27万1,700円
|
|---|---|
| 専有面積 | 71.25m² (21.55坪) |
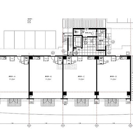
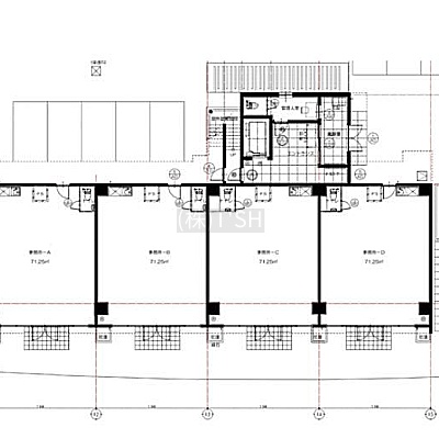
| 住所 | 福岡県福岡市南区長丘5丁目 25 |
| 交通 | 西鉄バス 「下長尾」停(徒歩1分) |
| 階/階建 | 路面 / 9階建 |
| 築年月 | 新築(2025年8月) |
| 駐車場 |
あり (1万2,100円/台)
2台確保可:平置き12,100円・機械式11,000円 |
【WEB面談可】
空室確認、見学、詳細を知りたい方はこちら!
お電話の際は「連合隊の物件」とお伝えください。
情報掲載期限:あと21日(更新日 2026/5/11)
- 物件写真・概要
- 周辺地図
-
【WEB面談可】
空室確認、見学、詳細を知りたい方はこちら!おすすめポイント
- 路面店
- 駐車場あり
- エアコン付
交通
- 西鉄バス 「下長尾」停徒歩1分(約20m)
物件概要
所在階/建物の階建 1階(C) / 地上9階建 主要採光面 構造 鉄筋コンクリート(RC)造 間取り ワンルーム 契約期間 定期借家(5年間) 権利金 フリーレント あり(フリーレント期間4ヶ月) 住宅保険 (2年間) 出店推奨業種 出店不可業種 水商売 引渡し 相談 管理人 取引態様 仲介 物件No 南O 設備・特徴 - エアコン付
- ビルトインエアコン
- 路面店
- 照明器具付
備考 現況優先となります。 主な周辺施設色がついているアイコンをクリックすると、本物件までの道順を見ることができます。
-
※連合隊は物件情報の精度向上に努めています:「物件情報に誤りがある」「成約済みである」などお気付きの点がございましたらこちらよりご連絡ください。
写真枚数:12枚
福岡の物件探しはT’SHにお任せください☆
整骨院院長が立ち上げた不動産会社★賃貸、売買、管理なんでも承っております!テナント探しもお任せください★整骨院関連、その他どのような業種内容でも精一杯お探しさせていただきます!送迎も可能です!土日も案内対応しております!ささいなことでもお気軽にお問い合わせください。