店舗・事務所(区分)|テナント
AG MEIEKI
ここに注目!事務所内装付
| 賃料・費用 |
89万3,200円
(+管理費等 -円)
坪単価:約3.0万円/坪
礼98万2,520円仲89万3,200円
保証金:893万2,000円(10ヶ月)
|
|---|---|
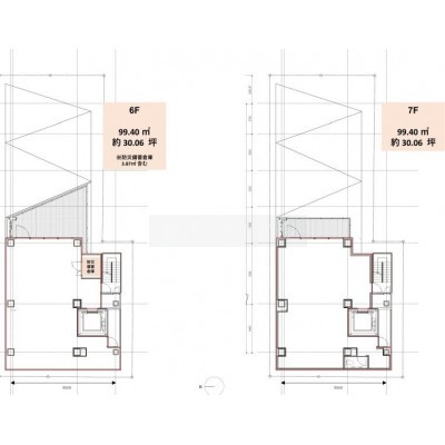
| 専有面積 | 99.37m² (30.05坪) |
| 住所 | 愛知県名古屋市中村区名駅3丁目18 |
| 交通 | 名古屋駅(徒歩2分) |
| 階/階建 | 10階建 |
| 築年月 | 建築中(2027年2月完成予定) |
| 駐車場 |
空室確認、見学、詳細を知りたい方はこちら!
お電話の際は「連合隊の物件」とお伝えください。
052-262-5755
新着 情報掲載期限:あと28日(更新日 2026/4/24)
- 物件写真・概要
- 周辺地図
-
空室確認、見学、詳細を知りたい方はこちら!
おすすめポイント
- 駅徒歩3分以内
- 光ファイバー
交通色がついているアイコンをクリックすると、本物件までの道順を見ることができます。
物件概要
所在階/建物の階建 7階 / 地上10階建 主要採光面 構造 鉄骨造 間取り 契約期間 5年間 権利金 住宅保険 出店推奨業種 出店不可業種 引渡し 2027年3月1日 管理人 取引態様 仲介 物件No 設備・特徴 - ブロードバンド回線(光ファイバー等の高速インターネット)
- 24時間利用可
- その他:都市ガス・公共下水・光回線・上下水道・電気
備考 店舗・事務所 -
ホームページはこちら愛知県知事 (3) 第22366号
(株)Tースタイル
※連合隊は物件情報の精度向上に努めています:「物件情報に誤りがある」「成約済みである」などお気付きの点がございましたらこちらよりご連絡ください。
写真枚数:4枚