事務所(区分)|テナント
KARIYA ISSHIKI BILD
| 賃料・費用 |
389万3,670円
(+管理費等 116万8,101円)
坪単価:約1.1万円/坪
礼なし仲389万3,670円
保証金:1,168万1,010円(3ヶ月)
|
|---|---|
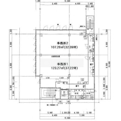
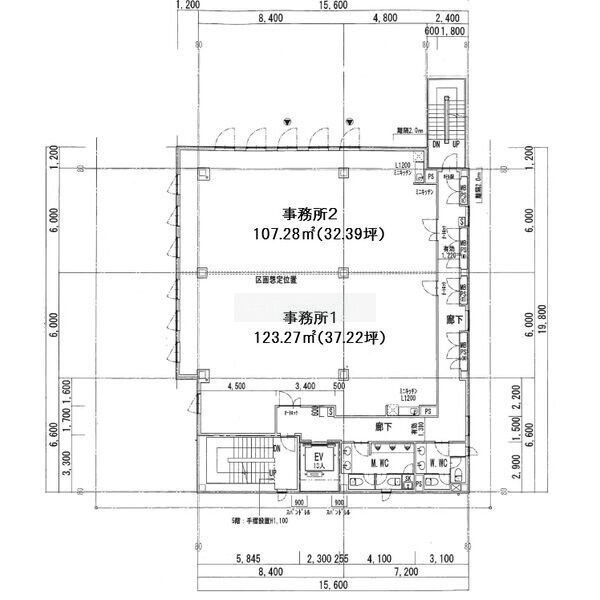
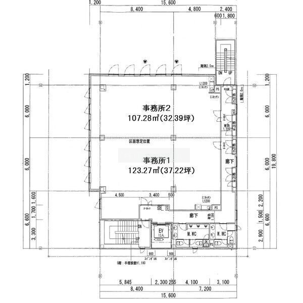
| 専有面積 | 1172.37m² (354.64坪) |
| 住所 | 愛知県刈谷市一色町3丁目8-19 |
| 交通 | 刈谷駅(徒歩15分)|重原駅(徒歩11分)|「一色町2丁目」停(徒歩4分) |
| 階/階建 | 5階建 |
| 築年月 | 建築中(2026年1月完成予定) |
| 駐車場 |
あり (6,050円/台) 駐車可能台数:50台
|
空室確認、見学、詳細を知りたい方はこちら!
お電話の際は「連合隊の物件」とお伝えください。
052-262-5755
情報掲載期限:あと30日(更新日 2025/12/23)
- 物件写真・概要
- 周辺地図
-
空室確認、見学、詳細を知りたい方はこちら!
おすすめポイント
- 即入居可
- 駐車2台以上可
- 男女別トイレ
- エアコン付
- 光ファイバー
- OAフロア
交通色がついているアイコンをクリックすると、本物件までの道順を見ることができます。
- 刈谷駅名鉄三河線、JR東海道本線徒歩15分(約1.2km)
- 重原駅名鉄三河線徒歩11分(約900m)
- 「一色町2丁目」停徒歩4分(約300m)
物件概要
所在階/建物の階建 1棟 / 地上5階建 主要採光面 構造 鉄骨造 間取り 契約期間 2年間 権利金 住宅保険 引渡し 即時 管理人 取引態様 仲介 物件No 設備・特徴 - エアコン付
- ブロードバンド回線(光ファイバー等の高速インターネット)
- 男女別トイレ
- OAフロア
- ビルトインエアコン
- 個別空調
- その他:ウォシュレット・公共下水・エアコン・光回線・上下水道・電気
備考 事務所 -
ホームページはこちら愛知県知事 (3) 第22366号
(株)Tースタイル
※連合隊は物件情報の精度向上に努めています:「物件情報に誤りがある」「成約済みである」などお気付きの点がございましたらこちらよりご連絡ください。
写真枚数:10枚