店舗・事務所(区分)|テナント
吉田貸店舗
| 賃料・費用 |
55万円
(+管理費等 -円)
坪単価:約6,635円/坪
敷300万円礼なし仲55万円
敷引・償却金:165万円(3ヶ月)
|
|---|---|
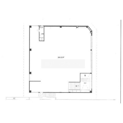
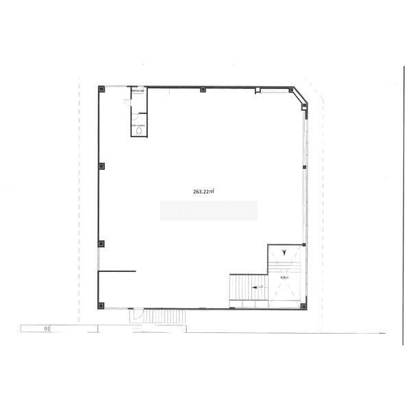
| 専有面積 | 274.05m² (82.9坪) |
| 住所 | 愛知県長久手市作田1丁目810 |
| 交通 | はなみずき通駅(徒歩12分)|藤が丘駅(徒歩15分)|「長久手口」停(徒歩6分)|「藤が丘南(愛知県)」停(徒歩7分) |
| 階/階建 | 2階建 |
| 築年月 | 築42年(1984年1月) |
| 駐車場 |
駐車可能台数:9台
|
空室確認、見学、詳細を知りたい方はこちら!
お電話の際は「連合隊の物件」とお伝えください。
052-262-5755
情報掲載期限:あと22日(更新日 2026/1/5)
- 物件写真・概要
- 周辺地図
-
空室確認、見学、詳細を知りたい方はこちら!
おすすめポイント
- 即入居可
- スケルトン
交通色がついているアイコンをクリックすると、本物件までの道順を見ることができます。
- はなみずき通駅リニモ徒歩12分(約1000m)
- 藤が丘駅リニモ、名古屋市営地下鉄東山線徒歩15分(約1.2km)
- 「長久手口」停徒歩6分(約400m)
- 「藤が丘南(愛知県)」停徒歩7分(約500m)
物件概要
所在階/建物の階建 1棟 / 地上2階建 主要採光面 構造 鉄骨造 間取り 契約期間 2年間 権利金 住宅保険 出店推奨業種 出店不可業種 引渡し 即時 管理人 取引態様 仲介 物件No 設備・特徴 - スケルトン
- 24時間利用可
備考 短期違約金として契約開始から5年以内の解約は償却100% 用途地域の制限があります。 第一種中高層住居専用地域 店舗可 病院可・診療所可・保育所可 (事務所・倉庫不可)、 スケルトン・現状渡し 1階駐車場9台有り(高さ制限H2030)、賃料に共益費・駐車料込み -
ホームページはこちら愛知県知事 (3) 第22366号
(株)Tースタイル
※連合隊は物件情報の精度向上に努めています:「物件情報に誤りがある」「成約済みである」などお気付きの点がございましたらこちらよりご連絡ください。
写真枚数:10枚