サン・栄三丁目ビル
ここに注目!☆保証金6か月→1か月に減額 ※保証金の増額について 室内造作工事を行う場合、室内造作撤去その他原状回復工事に係る費用が 1ヶ月分の家賃分を超えると想定される場合、原状回復費用相当額が保証金となります。 ☆1階に限り不特定多数の出入りのある店舗業種可能
| 賃料・費用 |
24万9,700円
(+管理費等 6万7,100円)
坪単価:約1.4万円/坪
敷22万7,000円礼なし仲24万9,700円
|
|---|---|
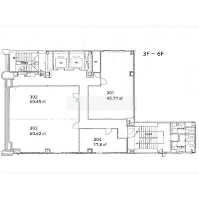
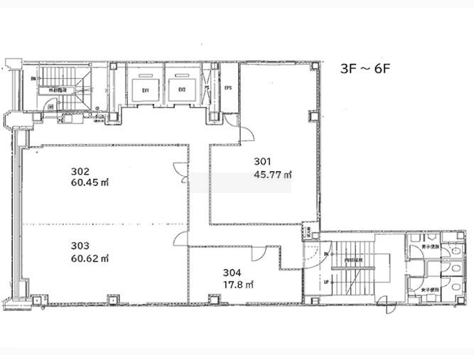
| 専有面積 | 57.69m² (17.45坪) |
| 住所 | 愛知県名古屋市中区栄3丁目35-47 |
| 交通 | 矢場町駅(徒歩8分)|伏見駅(徒歩11分)|栄駅(徒歩17分) |
| 階/階建 | 1階 / 7階建 |
| 築年月 | 築39年(1986年8月) |
| 駐車場 |
空室確認、見学、詳細を知りたい方はこちら!
お電話の際は「連合隊の物件」とお伝えください。
情報掲載期限:あと24日(更新日 2026/2/27)
- 物件写真・概要
- 周辺地図
-
空室確認、見学、詳細を知りたい方はこちら!
おすすめポイント
- 即入居可
- 光ファイバー
交通色がついているアイコンをクリックすると、本物件までの道順を見ることができます。
物件概要
所在階/建物の階建 1階(103) / 地上7階建 主要採光面 構造 鉄骨鉄筋コンクリート(SRC)造 間取り 契約期間 5年間 権利金 住宅保険 出店推奨業種 出店不可業種 引渡し 即時 管理人 取引態様 仲介 物件No 設備・特徴 - ブロードバンド回線(光ファイバー等の高速インターネット)
- その他:公共下水・光回線・上下水道・電気
備考 店舗・事務所 【お客様向け備考】:手洗い付き、定借5年 -
ホームページはこちら愛知県知事 (3) 第22366号
(株)Tースタイル
※連合隊は物件情報の精度向上に努めています:「物件情報に誤りがある」「成約済みである」などお気付きの点がございましたらこちらよりご連絡ください。
写真枚数:19枚