事務所(区分)|テナント
| 賃料・費用 |
28万4,570円
(+管理費等 6万5,670円)
坪単価:約1.4万円/坪
敷155万2,200円礼なし仲28万4,570円
|
|---|---|
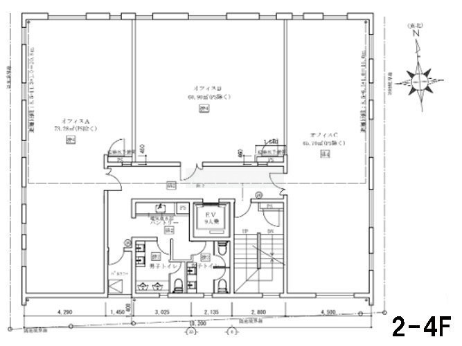
| 専有面積 | 65.79m² (19.9坪) |
| 住所 | 愛知県名古屋市中村区則武 (詳細非公開) |
| 交通 | 名古屋駅(徒歩6分) |
| 階/階建 | 2階 / 4階建 |
| 築年月 | 築4年(2021年5月) |
| 駐車場 |
2万5,000円/台
|
空室確認、見学、詳細を知りたい方はこちら!
お電話の際は「連合隊の物件」とお伝えください。
052-262-5755
情報掲載期限:あと22日(更新日 2026/1/5)
- 物件写真・概要
- 周辺地図
-
空室確認、見学、詳細を知りたい方はこちら!
おすすめポイント
- エアコン付
- OAフロア
交通
- 名古屋駅JR関西本線、あおなみ線、名古屋市営地下鉄桜通線、名古屋市営地下鉄東山線、東海道新幹線、JR東海道本線、JR中央本線、名鉄犬山線、名鉄常滑線、名鉄名古屋本線、近鉄名古屋線徒歩6分(約500m)
物件概要
所在階/建物の階建 2階 / 地上4階建 主要採光面 構造 鉄筋コンクリート(RC)造 間取り 契約期間 2年間 権利金 住宅保険 引渡し 相談 管理人 取引態様 仲介 物件No 設備・特徴 - エアコン付
- その他インターネット
- OAフロア
- ビルトインエアコン
- 個別空調
- 24時間利用可
- その他:公共下水・エアコン・オートロック・インターネット・エレベーター・上下水道・電気
備考 事務所 -
ホームページはこちら愛知県知事 (3) 第22366号
(株)Tースタイル
※連合隊は物件情報の精度向上に努めています:「物件情報に誤りがある」「成約済みである」などお気付きの点がございましたらこちらよりご連絡ください。
写真枚数:22枚