事務所(区分)|テナント
名古屋証券取引所ビル
ここに注目!条件非公開物件です、お気軽にお問い合わせください。 物販可能・クリニック等可能です。
| 賃料・費用 |
お問合せ下さい
|
|---|---|
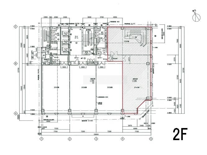
| 専有面積 | 201.69m² (61.01坪) |
| 住所 | 愛知県名古屋市中区栄3丁目8-20 |
| 交通 | 栄駅(徒歩6分) |
| 階/階建 | 2階 / 7階建 |
| 築年月 | 築18年(2007年8月) |
| 駐車場 |
駐車可能台数:0台
|
空室確認、見学、詳細を知りたい方はこちら!
お電話の際は「連合隊の物件」とお伝えください。
052-262-5755
情報掲載期限:あと28日(更新日 2025/12/16)
- 物件写真・概要
- 周辺地図
-
空室確認、見学、詳細を知りたい方はこちら!
おすすめポイント
- 光ファイバー
交通色がついているアイコンをクリックすると、本物件までの道順を見ることができます。
物件概要
所在階/建物の階建 2階(2階) / 地上7階建 主要採光面 構造 鉄筋コンクリート(RC)造 間取り 契約期間 10年間 権利金 住宅保険 引渡し 相談 管理人 取引態様 仲介 物件No 設備・特徴 - ブロードバンド回線(光ファイバー等の高速インターネット)
- その他:公共下水・光回線・上下水道・電気
備考 事務所 -
ホームページはこちら愛知県知事 (3) 第22366号
(株)Tースタイル
写真枚数:16枚