事務所(区分)|テナント
栄長谷川ビル
ここに注目!サロン居抜き物件です。
| 賃料・費用 |
91万5,222円
(+管理費等 15万2,537円)
坪単価:約2.3万円/坪
敷998万4,240円礼91万5,222円(1ヶ月)仲91万5,222円
|
|---|---|
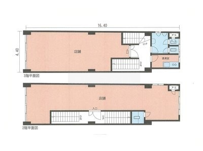
| 専有面積 | 130.97m² (39.61坪) |
| 住所 | 愛知県名古屋市中区栄3丁目7-5 |
| 交通 | 栄駅(徒歩2分) |
| 階/階建 | 2階 / 5階建 |
| 築年月 | 築52年(1973年3月) |
| 駐車場 |
空室確認、見学、詳細を知りたい方はこちら!
お電話の際は「連合隊の物件」とお伝えください。
052-262-5755
情報掲載期限:あと21日(更新日 2026/2/13)
- 物件写真・概要
- 周辺地図
-
空室確認、見学、詳細を知りたい方はこちら!
おすすめポイント
- 駅徒歩3分以内
- 光ファイバー
交通色がついているアイコンをクリックすると、本物件までの道順を見ることができます。
物件概要
所在階/建物の階建 2階(2階) / 地上5階建 主要採光面 構造 鉄筋コンクリート(RC)造 間取り 契約期間 2年間 権利金 住宅保険 引渡し 相談 管理人 取引態様 仲介 物件No 設備・特徴 - ブロードバンド回線(光ファイバー等の高速インターネット)
- その他:都市ガス・公共下水・光回線・上下水道
備考 事務所 -
ホームページはこちら愛知県知事 (3) 第22366号
(株)Tースタイル
※連合隊は物件情報の精度向上に努めています:「物件情報に誤りがある」「成約済みである」などお気付きの点がございましたらこちらよりご連絡ください。
写真枚数:8枚