事務所(区分)|テナント
松岡ビルディング
| 賃料・費用 |
123万2,000円
(+管理費等 -円)
坪単価:約2.2万円/坪
敷1,344万円礼なし仲123万2,000円
|
|---|---|
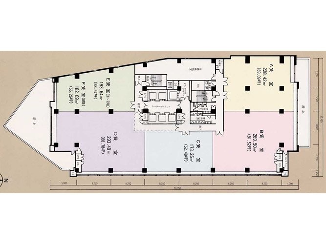
| 専有面積 | 185.12m² (55.99坪) |
| 住所 | 愛知県名古屋市中村区名駅2丁目45-7 |
| 交通 | 名古屋駅(徒歩1分) |
| 階/階建 | 3階 / 12階建 |
| 築年月 | 築38年(1988年1月) |
| 駐車場 |
4万5,000円/台
|
空室確認、見学、詳細を知りたい方はこちら!
お電話の際は「連合隊の物件」とお伝えください。
052-262-5755
情報掲載期限:あと30日(更新日 2026/2/27)
- 物件写真・概要
- 周辺地図
-
空室確認、見学、詳細を知りたい方はこちら!
おすすめポイント
- 駅徒歩1分以内
- エアコン付
交通色がついているアイコンをクリックすると、本物件までの道順を見ることができます。
物件概要
所在階/建物の階建 3階(3階) / 地上12階建 主要採光面 構造 鉄骨鉄筋コンクリート(SRC)造 間取り 契約期間 3年間 権利金 住宅保険 引渡し 相談 管理人 取引態様 仲介 物件No 設備・特徴 - エアコン付
- ビルトインエアコン
- その他:公共下水・エアコン・上下水道・電気
備考 事務所 -
ホームページはこちら愛知県知事 (3) 第22366号
(株)Tースタイル
※連合隊は物件情報の精度向上に努めています:「物件情報に誤りがある」「成約済みである」などお気付きの点がございましたらこちらよりご連絡ください。
写真枚数:18枚