事務所(区分)|テナント
名古屋第2埼玉ビル
| 賃料・費用 |
96万7,725円
(+管理費等 -円)
坪単価:約1.7万円/坪
敷879万7,500円礼なし仲96万7,725円
|
|---|---|
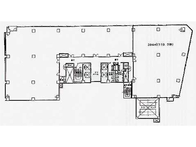
| 専有面積 | 193.88m² (58.64坪) |
| 住所 | 愛知県名古屋市中村区名駅4丁目2-28 |
| 交通 | 国際センター駅(徒歩1分)|名古屋駅(徒歩5分) |
| 階/階建 | 4階 / 9階建 |
| 築年月 | 築50年(1975年12月) |
| 駐車場 |
3万5,000円/台
|
空室確認、見学、詳細を知りたい方はこちら!
お電話の際は「連合隊の物件」とお伝えください。
052-262-5755
情報掲載期限:あと30日(更新日 2026/2/27)
- 物件写真・概要
- 周辺地図
-
空室確認、見学、詳細を知りたい方はこちら!
おすすめポイント
- 駅徒歩1分以内
- 光ファイバー
- OAフロア
交通色がついているアイコンをクリックすると、本物件までの道順を見ることができます。
- 国際センター駅名古屋市営地下鉄桜通線駅近!徒歩1分
- 名古屋駅JR関西本線、あおなみ線、名古屋市営地下鉄桜通線、名古屋市営地下鉄東山線、東海道新幹線、JR東海道本線、JR中央本線、名鉄犬山線、名鉄常滑線、名鉄名古屋本線、近鉄名古屋線徒歩5分
物件概要
所在階/建物の階建 4階(4階) / 地上9階建 主要採光面 構造 鉄骨鉄筋コンクリート(SRC)造 間取り 契約期間 2年間 権利金 住宅保険 引渡し 相談 管理人 取引態様 仲介 物件No 設備・特徴 - セントラル空調
- ブロードバンド回線(光ファイバー等の高速インターネット)
- OAフロア
- その他:都市ガス・公共下水・集中暖房・光回線・上下水道・電気
備考 事務所 -
ホームページはこちら愛知県知事 (3) 第22366号
(株)Tースタイル
※連合隊は物件情報の精度向上に努めています:「物件情報に誤りがある」「成約済みである」などお気付きの点がございましたらこちらよりご連絡ください。
写真枚数:20枚