店舗・事務所(区分)|テナント
トキワビル
| 賃料・費用 |
76万4,456円
(+管理費等 16万3,812円)
坪単価:約1.5万円/坪
敷555万9,680円礼なし仲76万4,456円
|
|---|---|
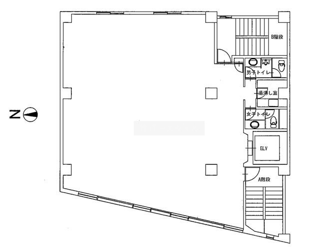
| 専有面積 | 164.09m² (49.63坪) |
| 住所 | 愛知県名古屋市中区金山1丁目14-16 |
| 交通 | 金山駅(徒歩1分) |
| 階/階建 | 6階 / 8階建 |
| 築年月 | 築46年(1979年2月) |
| 駐車場 |
空室確認、見学、詳細を知りたい方はこちら!
お電話の際は「連合隊の物件」とお伝えください。
052-262-5755
情報掲載期限:あと27日(更新日 2026/1/16)
- 物件写真・概要
- 周辺地図
-
空室確認、見学、詳細を知りたい方はこちら!
おすすめポイント
- 即入居可
- 駅徒歩1分以内
- 男女別トイレ
- 光ファイバー
交通色がついているアイコンをクリックすると、本物件までの道順を見ることができます。
物件概要
所在階/建物の階建 6階(6階) / 地上8階建 主要採光面 構造 鉄骨鉄筋コンクリート(SRC)造 間取り 契約期間 10年間 権利金 住宅保険 出店推奨業種 出店不可業種 引渡し 即時 管理人 取引態様 仲介 物件No 設備・特徴 - ブロードバンド回線(光ファイバー等の高速インターネット)
- 男女別トイレ
- 個別空調
- その他:光回線・エレベーター・電気
備考 店舗・事務所 -
ホームページはこちら愛知県知事 (3) 第22366号
(株)Tースタイル
※連合隊は物件情報の精度向上に努めています:「物件情報に誤りがある」「成約済みである」などお気付きの点がございましたらこちらよりご連絡ください。
写真枚数:5枚