いるかビル
ここに注目!函館市元町に位置する「いるかビル」1階、約492m²の広々とした貸店舗・貸事務所をご紹介します。 函館市電「末広町駅」まで徒歩8分、「十字街駅」まで徒歩9分と、主要駅へのアクセスも便利です。 美容・健康・介護、教育・スクール、事務所など、多岐にわたるビジネス展開に対応できるゆとりの空間。エアコン、エレベーター、男女別トイレ(共用部)、照明器具といった設備も充実しており、快適なビジネス環境をサポートします。 観光スポットが点在する元町エリアは集客力も期待でき、近隣には幼稚園や学校も多く、教育関連事業にも適しています。 近隣月極駐車場も10台分確保されており、車でのご利用にも便利です。 函館の歴史と文化が息づく元町で、新たなビジネスチャンスを掴んでみませんか?この機会にぜひご検討ください。詳細はお気軽にお問い合わせください。
| 賃料・費用 |
245万6,190円
(+管理費等 49万1,238円)
坪単価:約1.7万円/坪
敷1,339万7,400円礼なし仲245万6,190円
保証金:なし/敷引・償却金:なし
|
|---|---|
| 専有面積 | 492.11m² (148.86坪) |
| 住所 | 北海道函館市元町18-14 |
| 交通 | 末広町駅(徒歩8分)|十字街駅(徒歩9分)道順を見る |
| 階/階建 | 1階 / 3階建(地下1階) |
| 築年月 | 築32年(1993年2月) |
| 駐車場 |
近隣月極駐車場 駐車可能台数:10台
屋外共用駐車場になります。 |
空室確認、見学、詳細を知りたい方はこちら!
お電話の際は「連合隊の物件」とお伝えください。
情報掲載期限:あと23日(更新日 2025/11/28)
- 物件写真・概要
- 周辺地図
-
空室確認、見学、詳細を知りたい方はこちら!
おすすめポイント
- エアコン付
- 出店するなら…この業種がおすすめ!
- 飲食全般(重飲食含む)

- 喫茶・カフェ(軽飲食)

- バー・クラブ・スナック

- 小売・物販

- 美容・健康・介護

- 医療

- 教育・スクール

- 事務所

- アミューズメント

交通色がついているアイコンをクリックすると、本物件までの道順を見ることができます。
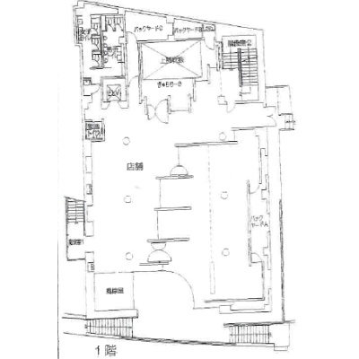
物件概要
所在階/建物の階建 1階(1階) / 地上3階 地下1階建 主要採光面 構造 その他(鉄筋コンクリート・鉄骨造) 間取り 契約期間 3年間 権利金 なし 住宅保険 お問合せください 出店推奨業種 美容・健康・介護、教育・スクール、事務所 出店不可業種 土地面積 980.81m² (296.69坪)(公簿)接道状況 一方 - 北西側幅12.20mの公道に36.97m接道
用途地域 - 第1種住居地域(建ぺい率:60% / 容積率:200%)
引渡し 相談 管理人 無 取引態様 仲介 物件No 設備・特徴 - エレベーター
- 照明器具付
- エアコン付
- ビルトインエアコン
- 男女別トイレ(共用部)
備考 ◇間取、設備等は現状を優先とします◇ 設置している設備等は残置物の為、修繕・メンテナンス・交換・廃棄は借主負担となります◇ 初回保証料:賃料等の総額の100%、月額手数料:毎月440円(税込)、年間更新料:賃料等総額の10%◇ 主な周辺施設色がついているアイコンをクリックすると、本物件までの道順を見ることができます。
-
※連合隊は物件情報の精度向上に努めています:「物件情報に誤りがある」「成約済みである」などお気付きの点がございましたらこちらよりご連絡ください。
写真枚数:30枚
函館市内の売買・賃貸はフルカワ不動産販売へお任せください
昭和60年4月より不動産業に従事してまいりました。 経験を基に 新たな知識も取り入れ、お客様のご希望にお応えします。 女性スタッフも従事しております。お気軽にご相談下さい。